负二层茶室
Negative second floor
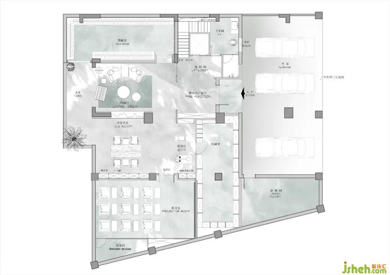
负楼层退合适距离为车库入户留出外前厅,整理过渡再入室内;解构负二负一层功能动线,调整楼梯位置于一处贯穿上下,设置电梯位置,挑空入户玄关、合理规划天井借光,将需要安静的茶室、收藏间、家庭影院置于负二层;成就入户高挑空玄关以及茶室,于青砖竹韵里一室干净明。

自然染色特殊处理的科技木结合玛格定制的技术呈现比纯人造化板材更自然的肌理、更温暖的触感。
将中式线型留白意境重新组织语言,巧妙修饰大型承重柱并起到修平原来土建墙面基础的严重错位不平整。


自然顶光倾泻而入,曾经的黑暗、功能鸡肋的负二层通过合理设计,重庆别墅设计转换为满足主要功能的舒适空间,专业设计费的价值体现就在如此。




依然精选的科技原木板组成暗含隐藏门的背景木墙,为负二层营造出一室的质感品味。
*抬头是取自于莲灵感的玄关吊灯吸引我们向上