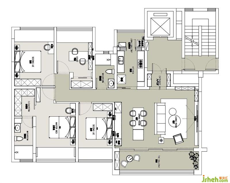
项目地址 | 绿城蘭园
项目面积 | 135m²
项目风格 | 现代雅致
项目设计 | 桓墅空间艺术设计机构-杨茜
项目类型 | 精装房改造
重塑理想生活,基于重塑理想空间,在空间的重构与塑造上不仅要实现功能与美学的效果最大化,更要考量空间里承载的情感与温度。
本案是一套四口之家的精装房改善新居,设计师在宽阔的空间格局中探索空间的无限可能,丈量舒适生活的尺度,将亲密的情感关系、高品质的生活追求、齐全的空间功能等因素纳入精细的设计中,在繁华喧闹的重庆,还原一处宁静清幽又精致优雅的理想家。
装修设计不需要刻意强调装饰和外表,反而以物品质朴纯粹的表现力,去创造能经历时间考验的本质美与真情流露的空间氛围,于是有了以下的新家。


宽敞明亮的空间感,
以自然的质感、自然的光给空间最真实的反馈。
多个功能空间的互交从改变现有建筑的空间和动线关系入手,
在最大程度上做到相融、相合。


餐厅是家中一处不用刻意营造就足够温情的空间。
通体暗色系的渲染中,
清蔬佳肴的烟火气尤显生动温馨,
发光灯带的玻璃橱柜增加储藏功能的同时
也让整个空间高级感提升,
另设置岛台和西厨,
为女主人的料理时光又提供一方自如的操作空间。

客厅的电视墙保留原有的硬包结构,
装修设计上结合墙面的色彩,
增加了石材、玻璃灯带、木质多样性,
空间材质有穿插且统一,
丰富空间的层次感,让空间变得不再单一化。


