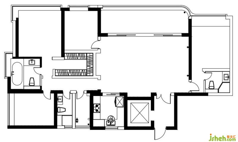
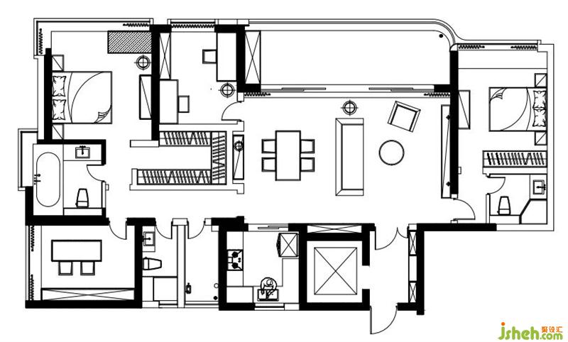
项目地址 | 西派城
项目面积 | 147平方米
项目风格 | 现代低奢
项目设计 | 桓墅空间艺术设计机构-阿怪
项目类型 | 精装房改造
我喜欢这黄昏,喜欢空气里喑哑的香气
和若有若无的钟声,从一棵树里发出来的
从一只鸟的翅膀里发出来
我喜欢这蓝色的,明亮的忧伤
这从云朵里缓缓落下来的光
——余秀华
空间改造:
考虑到原本精装效果层次较繁复,但涉及到内含空调地暖设备等问题,若大面积更改过于费时费力,违背购买精装房初衷。
因此除了在硬装立面的一些简单调整外,软装没有选择过于跳跃,而是尽可能迎合现有状态去做到一个最恰到好处的融合,延用硬装已经运用到的色彩配比关系把软装主体链接起来,相互融合呼应,主体家具均采用纯色色块形式,干净大气。
唯一用到的点缀色便是一家人都喜欢的蓝绿调,和小区景观也相映成趣,内外贯穿。
重庆家居设计关键词:质感,优雅,精致,温馨,清冽。
日子如光,静静流淌。
步入客厅,优雅的场景、细腻的色彩、轻柔的光线,勾勒出空间极致温柔的一面。流动的蓝色化为音符,在壁挂、抱枕、摆件之间起伏跳跃,将空间凝结成一首协奏曲,熠熠生辉、灵动悠长。



春天的白日,室外暖意洋洋、生机盎然,而室内却有一番安静的热闹。地毯温软,金色的边几,蓝色的果盘,葱茏的绿植,以一种恰到好处的热情激发着生活的乐趣。

时髦与复古并存的牛奶凳静处于客厅,空间也因此有了更加丰富多元的表达。闲暇时刻,坐于此,望见窗外的风轻拂绿枝,饮杯茶,细嚼春天的滋味。

“蓝色是天空,是水,是空气,是深度和无限,是自由和生命,蓝色是宇宙最本质的颜色。”
一幅拼接绘制的装饰画,让简约的餐厅多了一份舒爽明净。当细密的光线铺满整个餐桌,美好的感受一触即发。