欢迎光临聚设汇,装修找设计就上聚设汇!
   咨询电话:15602987227
登录    注册
聚设汇
首页 > 家装 > 一抹柔情,半抹红™

一抹柔情,半抹红™

室内设计师

室内设计师

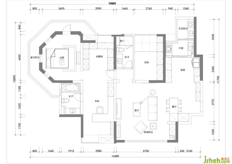
原始户型从外围分析,采光又通风,原房客餐厅空间大,不浪费丝毫空间;美中不足的便是厨房的使用面积偏小,不便操作,同样的,入户门厅无自然采光,偏暗。

平面户型空间改造

室内设计师在空间改造上做了放大处理。

1、将入户门厅融入餐厅空间,同时放大客厅、餐厅、门厅三个空间。

2、原有厨房空间开放出来做为西厨空间,开阔入户整体公共空间。

3、改变功能房开门的方向,使整个空间通风、采光更佳。

4、把原有独立的3个卧室改造、合并成独立书房、衣帽间、就寝区的大套房空间。

室内设计师

四川欢乐佳园装饰工程有限公司

设计收费:面议 元/平             

擅长类型: 家居住宅,别墅豪宅

在线咨询

扫描二维码关注我们的微信

深圳市聚设汇文化传媒有限公司
主编热线:15602987227
总部:深圳市罗湖区梨园路128号宝能汽车大楼416单元
佛山、东莞、成都、重庆、福州、厦门、南昌、武汉、
杭州、苏州、温州、郑州、长春、沈阳、贵阳、柳州、
哈尔滨、九江等城市设立办事处
© 2017-2021 Jsheh.com 版权所有 粤ICP备17079093号
展开
回到顶部