HLJY.design
Nordic style·北欧
设计 / CD&HLJY • 陈薇
Design director /Chenwei
项目面积 / 110m²
Area / 110m²
设计风格 / 北欧
Design style / Northern Europe
Simplicity is not the goal. It is the by-product of a good idea and modest expectations.”
简单,不是目的。它是好想法和谦逊期许的副产品。
–Paul Rand
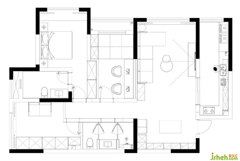
两人两猫一日三餐是这个家最温暖的诠释,本案例是一对年轻的小两口,房屋为三室两厅双卫,成都家居设计整个空间结构中动静分区合理,整体采光性好。女主人希望有可容纳两个人同时使用的独立书房,独立衣帽间。在满足需求的的前提下,以适当的形式感将立面造型与空间层次感结合起来,营造出轻松静谧的空间氛围。
项目的户型改动不大,将原本衣帽间门调整到原有储物间位置,形成过道独立端景位置。其次将次卫生间做三分离卫生间,方便使用。
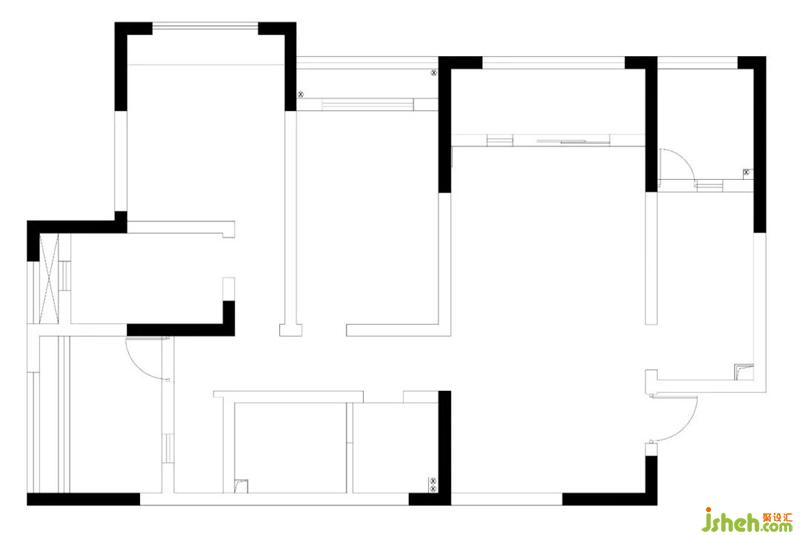
原始平面图
平面布局图
HLJY.design
Nordic style·北欧
▼ 客厅/A living room


客厅整体色调采用奶白色搭配原木,营造出清新的空间感。原木猫架的设计,不仅让猫咪有了嬉戏玩耍的地方,也让整体空间延伸,增强视觉感。摒弃过度的华丽装饰,简洁的线条,温和的色调,安宁地诠释出静谧的格调。



将入户储物柜以及餐边柜整体处理,增加空间整体性。原木餐座椅与原木零食柜相呼应,白色系的主色调让空间中的不同元素可以彼此连贯,材质、色系之间对应,释放家中的稳重恬静与平和。在这里就餐食欲一定会倍增!
▼ 厨房/Kitchen

根据业主的烹饪习惯,在成都家居设计中摒弃传统门槛石以及瓷砖,将客厅地板延续到厨房位置,使空间更简洁,整体性也更强。并在墙面采用专用防水漆,增加空间色彩层次。