坐标:深圳市宝安区
户型:三居室
面积:89㎡
预算:30万
时长:4个月
设计:本居设计
说在前面
这套89㎡的公寓位于深圳市宝安区,屋主为一对年轻夫妇。家里一共六口人居住,除夫妇外,还有两个小孩和爷爷奶奶。屋主希望房子可以设计得简约温馨一点,能感受到家的温暖,且因为爷爷患病,对大量药物如何存放非常苦恼。设计师根据这些要求,在改造时增加了大量的储藏空间,整体风格也简洁明亮。
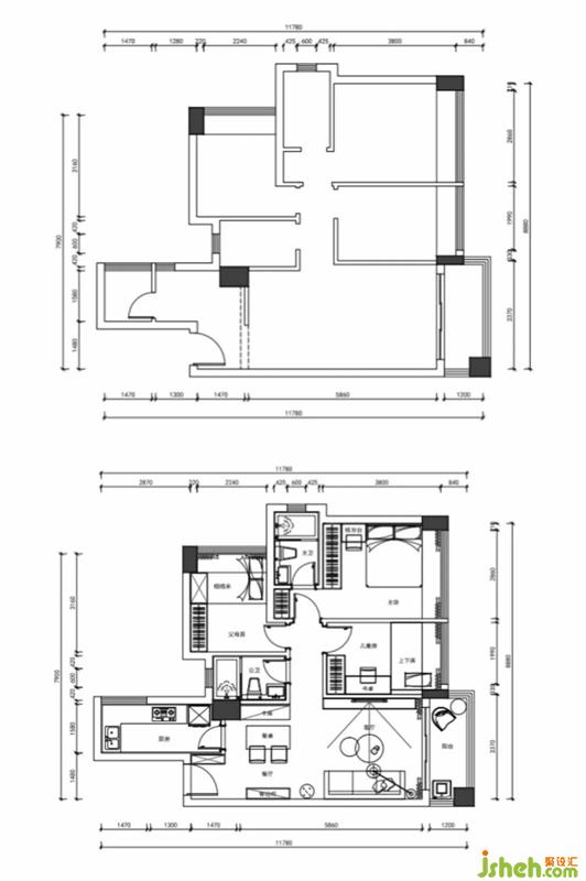
户型图
改造前后户型图
客厅
一体式背景墙
客厅放弃了传统的矮柜+背景墙的组合方式,定制了一体式的电视柜组合,既能是电视柜也可以是储物柜,增加收纳空间。包围式的回型设计,白色系+原木色,简约大气又实用。室内设计师
淡蓝色L型沙发,温馨简约。晚饭过后,一家子窝在沙发上看电视,享受惬意的休闲时间。
闲置物品可以放在置顶柜,收藏品可以展示在开放柜,大面积的闭合柜会让整体看起来更加整洁。室内设计师
设计师把家里最大的空间让给了客厅,毕竟客厅是家人在家呆的时长最多的地方。整个客厅的色调以白色为主,蓝色系的L型沙发和布艺窗帘,使整体视觉不单调无聊。
北欧风几何圆形茶几
小奶牛矮凳,也可放在玄关做换鞋凳用。室内设计师
餐厅
