项目设计:深圳本居设计
软装实施:深圳本居设计
项目地点:深圳金港豪庭
项目面积:99㎡
装修风格:日式风格
「 写 在 前 面 」
阳光帅气,很有主见,这是我们第一次见到并沟通之后,对眼前这个年轻的委托人的深刻印象...
由于父母平时工作非常忙,所以设计的沟通及方案都交由儿子来决定。或许是因为长期在海外留学的缘故,儿子对于设计的执着与理念,都很有自己的想法。
当然了,我们也用我们的靠谱和责任得到了屋主的充分信任,整个装修过程,女主人都没有去过现场,直到软装阶段才首次到场,并表示结果令人非常满意。室内设计师
对于这有爱的一家,我们的印象是:一家人性格都非常平和,女主喜欢看书,男主爱喝茶,儿子喜欢手冲咖啡而且特别的宠爱妹妹,是一个超级有爱的家庭。
不过,在欣赏这个案例之前,或许可以先看看这篇文章《2009—2019中国小家精细化变迁》,这是逯薇老师在“家的容器”公众号里分享的一篇文章,文章以相当“硬”的方式,记录了2009-2019年这十年来,中国住宅精细化变迁十个要点。里边的举例案例,就是这个案例~
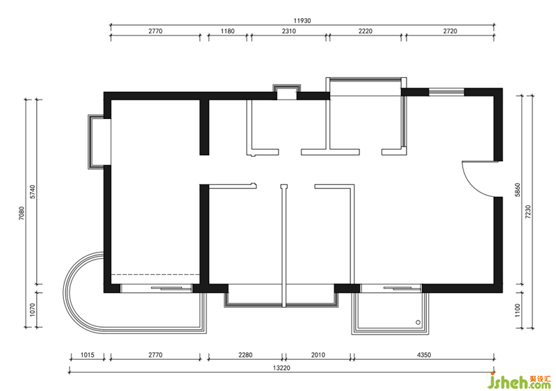
▼原始结构图
从原始结构图可以看出,房子是标准方正户型,在设计之前,我们得知了屋主的一些“简单”的想法和要求:
1.收纳要充足
2.客厅可以不考虑电视沙发
3.书本随处可取
既然是“简单”的要求,那当然就有它“简单”的做法,于是我们做了如下“简单”的设计:
▼平面布置图
1.客厅两面整体书柜,无沙发电视墙(图纸上客厅位置的沙发,是考虑到今后可能的需求,现场暂无)
2.优化厨房餐厅空间,可分可合式厨房,增强空间交互性
3.优化过道区域,占用一点点原来儿子房及客厅的空间,放置冰箱
4.独立的电系家政区域,卫生间三分离
诚然,空间设计优化到极致,即使有限的空间,也可以越住越大,就像这个案例一样:温馨的配色,温暖的材质,温柔的搭配,和温馨的一家,真的十分登对。室内设计师
「 项 目 实 景 」
▼玄 关
▼进门右手边整面柜体设计,与其说是玄关鞋柜,倒不如说是兼具鞋柜、餐边柜及置物功能的多功能玄关柜体。柜体的斜侧角设计,也体现了设计师对安全居家的考量,关键是,颜值还挺高!
▼柜体中间的镂空部分连接延伸至窗边的木质台面,餐桌可以推进台面下特意留空的位置,其余靠墙部分全部作为收纳空间,再加上木色与白色的搭配,好看的同时,该有的功能一个也不落下。
▼客 厅
▼在家居精细化的变化中,就提到了客厅沙发电视变多元起居。就如该案例一样,客厅无沙发电视背景墙设计,取代的是两面顶天立地的书柜,要说为什么是书柜,因为爱学习的一家人,平常都喜欢看书。室内设计师

▲当然了,多元化的起居空间,可不止是墙面的变化。多功能混合的客厅空间,即使没有电视,娱乐功能也不能丢,以投影幕布取代电视,必要时亦可作为私人的家庭影院。
▲客厅细节图
▼餐 厨 区
▼打通封闭的厨房空间,用多扇对角推拉门做成可分可合式,这样一来,不但增强了餐厨客三个空间的交互性,也使得整个布局也变得更加活泼丰富。

▲可分可合式厨房