房屋信息
坐标:深圳
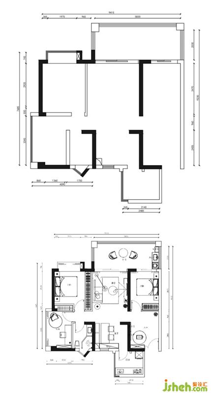
户型:三房一厅
面积:94㎡
预算:18万5
时长:2个月
设计:本居设计
这是位于深圳市南山区的一套三居室,面积94㎡。业主希望改变老旧的房屋现状,重新装修后出租。在确保高性价比的情况下尽可能给租客一个实用又具审美性的家。因为业主对我们团队比较了解,所以全权交给设计师负责,任设计师自由发挥。根据以往经验,针对租房群体主力为85、90后,针对该群体喜欢的风格,创造了一个简约轻奢的现代化居室。
户型图
户型前后对比图
改造前,主卧和书房的空间都中规中矩,储物空间不够,把主卧墙体往客厅方向推60cm,书房墙体往主卧推60cm,这样两个房间都有了一个大衣柜,解决了收纳的问题。
改造前





玄关
在玄关处定制了一个顶天立地的收纳柜,同时兼顾鞋柜和杂物收纳。中间留空,进门就可以把快递、钥匙、包包、雨伞通通甩在上面。墨绿色的小矮凳,出门换鞋的时候就不怕站不稳东倒西歪啦。穿上好看的衣服,配上温柔的灯光,在镜子前拍个美美的照片,美好的一天就开始了。