欢迎光临聚设汇,装修找设计就上聚设汇!
   咨询电话:15602987227
登录    注册
聚设汇
首页 > 家装 > 打造110㎡完美花园房,每1㎡都不将就

打造110㎡完美花园房,每1㎡都不将就

项目地址:广东 深圳

使用面积:110㎡

项目总花费:60万

设计机构:本居设计

设计费用:200-380/平米

有个宁静的小院儿或美丽的花园,是许多热爱生活的人的梦想,就像今天故事的主人公,在选房时,虽然屋子是个阴暗潮湿的户型,但为了屋前的小庭院,还是咬咬牙买了下来。

这是一家五口人,爷爷奶奶、爸爸妈妈,还有一个学龄前的小朋友。因此家里必须保留三个卧室,有充足的收纳空间,此外,男业主还希望有一间小小的书房,满足他偶尔的办公和阅读需求……

当然,一家人都满心期待着小花园能一改脏乱差的模样,成为舒心又浪漫的休闲空间,让平淡琐碎的日子散发出袅袅诗意。

原始户型图

这个位于深圳市的110㎡三室户型,具有南方老房常见的缺点:阴暗、潮湿,而且承重墙很多,对改造限制较大。

主要问题:

1、房子位于一楼,原始地基有坡度,自带的花园连接小区花园,而阳台一侧下面有架空层;

2、原户型进门动线为次卧-厨房-客厅-餐厅,非常混乱,各种绕远路;

3、通道过宽,造成空间浪费;

4、厨房面积太小,阴暗逼仄、使用感差。

原始图片

总体来看,改造方向主要有三个:

一是重新梳理功能布局,改善生活动线;二是拆改不必要的隔墙,增加通透感受;三是规划更多储物空间,让家越住越大。

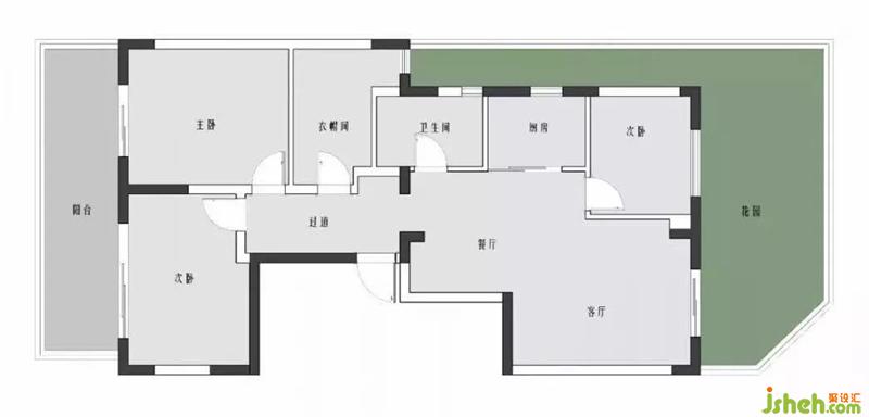
改造后户型图

改造要点:

1、清理花园内原有乔木和地面泥土,增加硬质铺装面积,减少绿化面积,防止蚊虫滋生;

2、餐厅区域的窗台抬高,外侧安装小吧台,构成花园与室内的联系;

3、原本的入户门关闭,改为从花园开门入户,极大地调整了动线;

4、过道用顶天立地柜补平,大大增加了家中收纳空间;

5、与客厅相邻的卧室拆除,改为餐厅+西厨,原餐厅改为书房,将客厅-餐厅-西厨-中厨-书房相互联动起来;

6、将阳台封闭,分别纳入主卧和儿童房,扩大室内面积;

7、原衣帽间拆除,与原主卧空间重新组合划分为两个次卧;

8、卫生间改为三分离式,洗漱-如厕-洗澡可以同时进行,满足一家五口人的需要。

花 园

原先的小花园疏于打理、破旧不堪,而且种植的都是大型树木,蚊虫很多。

把树木清理后,清理了地面泥土,铺上水磨石地砖减少绿化面积,植物改成小盆的花草,清新好看易打理蚊虫问题也得到了解决。室内设计师

入户门也改建在了这里,踏进这个花花草草的小院子,一天的疲惫都会被植物的香气洗净。

小窗户通向餐厨区,设置了向外延展的遮雨棚和台面,有时没进门就能看到屋里家人的动态,感受到浓浓的温暖和烟火气。室内设计师

晴天时坐在这里,沐浴着阳光清风,喝一杯咖啡、眯起眼睛发呆,下雨了也可以手捧一本书,伴着雨声阅读,让整个身心一起接受大自然的洗涤。

客 厅

入户门调整后,进门不再是一堵墙,而变成了宽敞通透的客厅。

进门左手边的顶天立柜作为鞋柜使用,右手边紧靠房梁放了小巧的边柜。

一整面纯白立柜作为电视背景墙,储物量十分可观。相框式的造型,

中间留空将电视镶嵌其中,下方的开放空间用于放置路由器等。

整个客厅充分运用自然元素,包括人字拼的木地板,树枝造型的吊灯完美地融入空间。室内设计师

铺贴了复古花纹壁纸的“绿盒子”里,是专门为男业主准备的书房。

整体采用暗色调为主题的软装搭配,棕色皮质三人沙发和深木色边几,轻奢小复古的感觉悄然而生。

深圳本居设计咨询有限公司

设计收费:200-380 元/平             

擅长类型: 家居,民宿

在线咨询

扫描二维码关注我们的微信

深圳市聚设汇文化传媒有限公司
主编热线:15602987227
总部:深圳市罗湖区梨园路128号宝能汽车大楼416单元
佛山、东莞、成都、重庆、福州、厦门、南昌、武汉、
杭州、苏州、温州、郑州、长春、沈阳、贵阳、柳州、
哈尔滨、九江等城市设立办事处
© 2017-2021 Jsheh.com 版权所有 粤ICP备17079093号
展开
回到顶部