欢迎光临聚设汇,装修找设计就上聚设汇!
   咨询电话:15602987227
登录    注册
聚设汇
首页 > 家装 > 打造摩都轻奢优雅格调,时尚元素尽显生活品味

打造摩都轻奢优雅格调,时尚元素尽显生活品味

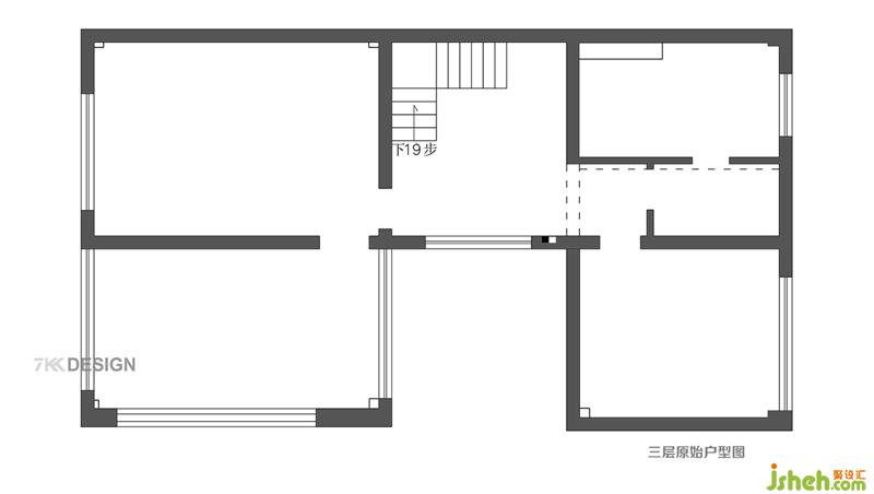
三楼原始户型图 从平面图看到中间凹进去的空间处于外立面,后期重新搭建,为三楼增加使用空间。凹进去的左边空间是三楼的露台空间,物业不允许封闭。 

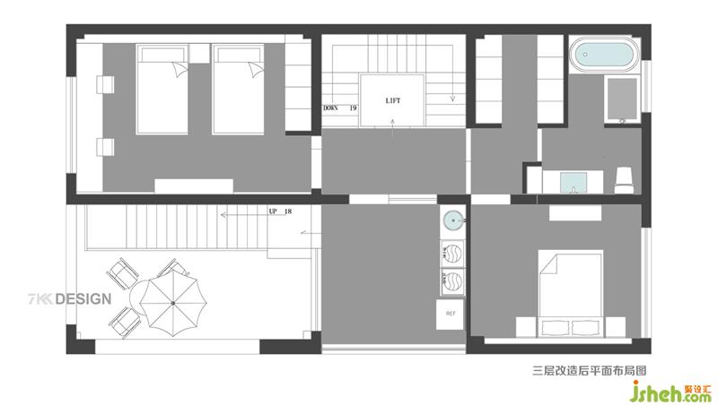
三楼改造后平面户型图 三层使用面积有90㎡ 1、楼梯上来南边的一个卧室是儿童房,作为两个男孩的休息空间,北边卧室作为主卧是业主夫妻房。 原本儿童房作为主卧使用,后来改变功能一是因为两个男孩如果在北边的卧室会觉得比较拥簇,其次他们找过风水大师测算,北边的卧室作为主卧使用会带来好运。 2、主卧外侧是衣帽间和卫生间空间。开放式步入式衣帽间,卫生间干湿分离,马桶和台盆中间采用玻璃隔断,淋浴区单独空间靠窗设计拥有更好的通风效果。 3、重建的区域作为洗衣房,顶部部分玻璃搭建,采光通风视觉效果都很好。剩下是部分露天阳台,准备后期做别的功能使用,暂时也是晾晒空间。

- 玄关 -

入户门外边的小庭院虽然面积不大,但是效果很赞,顶部采用透明玻璃顶,采光充足。靠墙转角做到顶的高柜+换鞋凳一体设计,进门可以放置临时进出的物品,坐着换鞋很方面。柜体选择高级灰,进户门选择白色欧式造型门,高贵庄严大气又含蓄雅致。最吸引眼球的是角落的装饰品,小孩拿着红色的气球,似乎在迎接主人到来,很有乐趣。让庄重内敛的庭院瞬间变得活力有趣味。 

进户门到一楼需要6步台阶,底部暗藏灯带,拱形门和墙面一侧的拱形造型结合,有种老洋房的感觉,气派中透露着一股浓厚的复古文艺气息,高级感扑面而来。进入客厅区域充满着仪式感。 左边深色弧形玻璃里面是通到地下室的,原本设计师是要预留一扇门的,业主怕一楼也沦为小孩子玩乐的战场装修时就封闭了。 

拱形造型沿着台阶高度设计,里面搭配精致吊灯,上面摆放可爱的装饰品艺术挂画,充满文艺感,又有一丝童趣活力在里面。如果弧形的玻璃预留一扇门,这里也将成为小孩子玩耍的快乐天堂哦。#楼梯 #摆件 #装饰画 #吊灯 #壁灯

从台阶上来还有着3m的高度,其中拱形造型的应用让空间在视觉上显得更高,呈现柔和优美的曲线和弧度。进门顶部的弧形和到客厅的弧形造型相呼应,与客厅之间起到空间上的隔断和过度。从进门可以看到很多金属元素的应用,点缀出不一样的轻奢感。 左边弧形玻璃上面我们看到金属边框的造型,从夹层可以看到它的惊艳之处,透过玻璃可以看到楼梯走廊空间的动向。

- 客厅 -

客厅进来,整个墙面延续之前的拱形门造型与层板结合,上面摆放精致的装饰品,美观与实用并存。客厅白色与灰色为基调,金属元素点缀。软装上搭配粉色系,打破客厅的清冷与单调。顶部不同区域的吊顶处理使得空间层次感更加丰富。午后的阳光透过大面积的玻璃窗照泻进来,很明媚的感觉。

高级质感灰色沙发,搭配质感的黄铜落地灯、茶几、装饰柜,无处不散发着精致、轻奢的气息。 

客厅阳台采用折叠门。很多人都在纠结客厅阳台之间要不要装推拉门隔断,你选择折叠门就可以得到两种效果。移拉门会在一定程度上限制了阳台的开放程度,在客厅和阳台之间装上一扇折叠门,关起来的时候隔音又隔热,打开之后就是一个开放式的空间,阳台融入客厅空间。一扇折叠门使阳台达到了百分百的开放效果,再也不会像移拉门那样半遮半掩了啦!

7KK设计

设计收费:面议 元/平             

擅长类型: 家居住宅,别墅豪宅,商业展示,办公室,餐厅,咖啡厅,医院,会

在线咨询

扫描二维码关注我们的微信

深圳市聚设汇文化传媒有限公司
主编热线:15602987227
总部:深圳市罗湖区梨园路128号宝能汽车大楼416单元
佛山、东莞、成都、重庆、福州、厦门、南昌、武汉、
杭州、苏州、温州、郑州、长春、沈阳、贵阳、柳州、
哈尔滨、九江等城市设立办事处
© 2017-2021 Jsheh.com 版权所有 粤ICP备17079093号
展开
回到顶部