户型:二室
使用面积:75.0平米
房屋位置:上海 松江
设计机构:7kk设计
装修花费:15万元
说在前面
本案位于上海市松江区“奥林匹克花园”,整体的设计属于北欧风格,没有繁杂的装饰,优雅不失格调的设计让人充满惊喜。 家里的小夫妻每个星期都会去杭州进行徒步爬山,摄影,在每次出远门的时候都会把攻略做足,兴趣相投的2个人都喜爱足球,喜欢同一支球队(拜仁慕尼黑),每次有球赛都会一起看,或许陪伴才是最长情的告白吧。
ROOM SHOW
空间展示
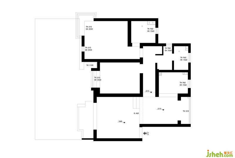
- 户型图 -
改造前的原始户型图
1.整个走廊没有透光的地方,光线较差。
2.客厅因为踏步的位置,摆放沙发的位置过于狭隘。
3.次卫因为墙体的关系,整个空间给人一种压抑狭小的感觉。
经过改造后的户型图
1.将主卧室的主卫修改为了衣帽间,以增加收纳空间
2.将厨房一面墙打通变成开放式厨房使整体空间变得更为通透,也增加了走廊的采光度。
3.将次卫无用的墙体打通,重新合理的规划了面积并设置了三式分离。
4.通过调整踏步的位置,使得整个客厅空间变得更为宽敞。
5.重新调整了主卧的入门位置,避免了卫生间正对门口。
- 客厅 -


通过客厅与餐厅之间的透明隔断,让整个房间的采光变得更为通透并有效分隔开了功能区。上海室内设计师配合屋顶的不规则艺术灯搭配整个屋子的色调,北欧小清新的感觉油然而生。
通过木质纹理瓷砖的温润,以及原木质感的圆桌装饰,搭配空间摆放的绿植,带来了自然清爽的感觉,更显简约、洁净。



改造后的小踏步使得空间布局更为合理并营造出了整体的空间感,使得整体空间错落有致,通透而宽敞。
客厅的改造选择用色彩进行渲染,业主有看书的习惯,选用浅灰色的棉麻沙发,小清新的背景墙,搭配上绿植,还有墙壁细节的装饰,给人带来视觉上的清新靓丽,心情变得轻松起来。

随处可见的植物装饰,让你仿佛身处大自然,植物与现代家居设计的完美融合,也带来了一种宁静祥和的感觉。