设计公司:7kk设计
户型:五室以上
使用面积:400平米
房屋位置:上海 闵行
装修花费:147万元
说在前面
236m²的下叠别墅是两层的建筑面积,地下室是赠送的,再加上后期经过设计改造,最终使用面积达到将近400m²,地下室如何防潮采光通风,空中花园如何变成使用面积,上海别墅设计利用挑空如何改造成阳光房,这些方面都是这个房子改造的亮点,大理石与木材相互碰撞,玻璃元素穿插其中,质感天成的品质现代台式空间体现的是业主时尚前卫的品味。
ROOM SHOW
空间展示
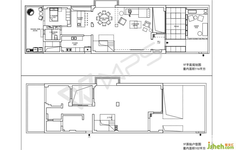
- 户型图 -

地下室:
1:在原有户型图墙体基础上和内部左边墙体全部拆除的空间上做了儿童玩耍区和影音室,同时做了防水卷材处理,影音室运用软包材质有了更好隔音效果。
2:利用地板上墙搭建了客卧;
3:台球桌周围墙面做了壁布处理;
4:在台球桌旁边利用部分墙体做了L型储藏柜;
5:把花园区域纳入室内空间,增加室内面积。

一楼:
1:原始户型图从左边进门没有完整的门厅换鞋处;改过后从右边花园进入有了宽敞的门厅和换鞋储藏的空间。
2:一楼有三个局部挑空的处理,使得地下室成为“可通风”的“全明”空间,即使在不开新风的时候也感觉空气不错。
3:南面花园与地下室的“互通”空间改成阳光房后,不仅潮气问题解决了,还能有更多“晾晒空间”,地下室也增加了不少室内空间(14平方)。
4:原本东面地下室的天井,在一楼现浇了新的楼板,然后侧墙从一楼到二楼封了全玻璃(留了两扇窗户通风,早上阳光从东面洒入效果很好。窗外绿植春夏秋冬的不同景色,也是一幅幅美丽的画面。
5:充分利用空调外机平台,纳入做室内空间,使得主卫和客卫都“变大”不少。

二楼:
1:主要以休息为主,最大的亮点是把主卧和其中一次卧做了一套房使用,利用走廊的空间面积做了一排储藏柜;
2:把客卫和主卫阳台的空间纳入室内增加使用面积。
- 玄关 -
原始套内使用面积98平改造后套内使用面积122平方。 改了进户门后从入户花园进来做了整排到顶鞋柜,进门做了不锈钢门套,整个客厅墙面都采用了不同的材质做装饰。吊顶也做了硬包处理嵌入式灯箱。整体嵌入式电视柜,整洁收纳功能强大。 为了让地下室有更好的自然光线通风效果,借用客厅靠近阳光房一侧的面积做了镂空处理,用大面积透光玻璃搭配窗帘,在客厅进门墙面利用电动智能开光控制阳光房一侧的玻璃开关,方便使用。
客厅沙发背景墙浅灰色墙面石材,深灰色质感沙发搭配暖色单人沙发和人字型拼接地板,整个空间多了份活力。
客厅以白色为主搭配部分黑色台面多功能整体嵌入式电视柜,有了强大的收纳功能,镂空的隔断可以放置装饰艺术品,吊顶一侧做了中央空调,整体空间整洁,大气、美观。
从客厅看餐厅。利用原有柱子做了矮隔断处理,可以收纳储藏,同时把餐厅和客厅功能区域分开。
客厅沙发一隅,一个安详宁静的下午,一杯咖啡,一本书。
地下室楼梯,一字型拼接地板,不同的区域不同采用不同的材质划分。下楼可以看到正对的次卧是用利用地板上墙材质搭建了客卧。
台球室区域。
对着客卧的一侧做了透光玻璃,增加客卧室内的采光,正对台球的墙体也是和客卧采用一样的地板上墙处理。利用撞角的空间做了一排整体的收纳储藏柜。
台球室区域。吊顶以白色为主,灯光采用大面积方形主吊灯的形式,部分区域利用筒灯补充光源上海别墅设计。台球一侧是在原有部分墙体重新搭建的造型墙一是作为承重墙使用,二是做了卡座沙发作为休闲休息空间使用。
客卧。简约舒适的睡眠环境。地下室:影音室。大面积黑色绒布包边的幕布,看电影时有了强大的视觉感。
影音室沙发背景墙。在沙发背景墙顶部做了镂空处理,自然光线融入室内。整体墙面做了软包处理,达到更好的隔音效果。
- 客厅 -


