欢迎光临聚设汇,装修找设计就上聚设汇!
   咨询电话:15602987227
登录    注册
聚设汇
首页 > 家装 > 打造摩都轻奢优雅格调,时尚元素尽显生活品味

打造摩都轻奢优雅格调,时尚元素尽显生活品味

设计单位:7KK设计

户型:五室以上

使用面积:480平米

房屋位置:上海 闵行

装修花费:300万元

本案位于浦江华侨城二期的一套叠拼别墅,主要是三代人居住,夫妻,父母以及三个小朋友。两个男孩一个7岁,一个3岁,一个女孩只有几个月。原本他们一开始居住在上海浦东三林的一套复式,复式地下室本身利用率也不高,由于居住人口逐渐增多,想重新装修设计下,找到我们7KK的老朋友设计师麦古一,作为老朋友的角色设计师麦古一给出他们最诚恳的建议,重新换个房子,因为复式的格局怎么设计都显得不如意,达不到生活的品质。机缘巧合下麦老师附近有套别墅装饰要出售,介绍给了业主,各方面都挺适合,地下室有一层,地上三层半,而且价格只比复式多了一点,他们还可以承受,于是乎就这样买下了房子开启人生新的旅程。 接下来就是业主和麦老师沟通房子设计的情况,首先想到的就是一定要有电梯,这是男业主一直的梦想,其次为几个孩子打造一个属于他们的梦幻乐园,可以释放孩子纯真的天性,发散他们的思维。为了父母考虑二楼要预留父母房方便上下楼梯走动。地下室由于本身条件限制,只好打造豪华的影音室和孩子的游乐园。对于二楼和三楼空间原始建筑结构重新搭建增加部分使用面积,是业主最开心的地方。业主希望打造不一样的轻奢风,优雅有格调,融入时尚精致的元素可以彰显生活品味。

ROOM SHOW

空间展示

- 户型图 -

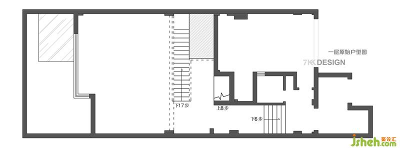
一层原始户型图 业主需求:一楼主要为公共区域,需要有电梯,豪宅标配私人电梯是业主买房之前就有的梦想实现在这栋别墅能够实现,要预留车库空间。 1、一楼原始楼梯的位置在整个房子的中间位置,东西走向,使得客厅空间比较独立。 2、由于一楼和二楼中间有一层夹层主要是厨房餐厅空间,业主希望有中西厨,吧台和中餐厅,所以夹层的空间想要拥有这些功能区域比较尴尬。 3、南面只有部分的挑空到地下室,地下室采光和通风效果都不是很好。 4、平面图可以看到进户门进来左边墙面有柱形承重墙凸起,影响视觉效果,希望得到处理。

一层改造后平面布局图 由于这套房子的承重都在四周,内部的一些墙体都可以拆除重建,为改变格局埋下了很好的基础,使得方案得到很好的呈现。一层使用面积有137㎡。 设计师原本想把车库和客厅打通,这样一层的空间就会变得更宽敞,使用率更高,但是业主要求保留车库空间,设计师还是觉得挺遗憾的。 1、从入户门进来,把原始的卫生间空间拆除改到别的区域,腾出来的空间同时借用部分车库空间,打造儿童游乐区直通地下室,四周采用弧形玻璃,这样从进户门回家就可以看到小孩子玩耍的情况。 原本弧形玻璃设计师预留一扇玻璃门通到一楼,业主最后装修时没有采用,怕小孩子从地下室玩耍出来再到一楼,整个空间都会成为小孩的游乐空间,怕场面难以控制,只好封闭,让地下室成为小孩子的纯娱乐空间。设计师也是举得很遗憾。 2、改变原始的楼梯位置,从客厅一侧南北走向设置楼梯的位置,并留出电梯的空间。从楼梯走向一楼到二楼夹层的餐厨空间,从客厅南面预留楼梯通往地下室,同时设计挑空为地下室引入更多的自然光,达到更好的通风效果。 3、改变楼梯的位置楼,原始楼梯剩余的空间摆放中餐厅,夹层餐厨空间得到更多的释放。开放式的客餐厅一体,大人在吃饭的同时可以看到小孩在客厅玩耍,随时关注孩子的动线。楼梯的改变让空间达到更好的视觉效果,更宽敞。 4、原始墙面的承重柱结合造型包裹起来,营造完整的更好的视觉效果。

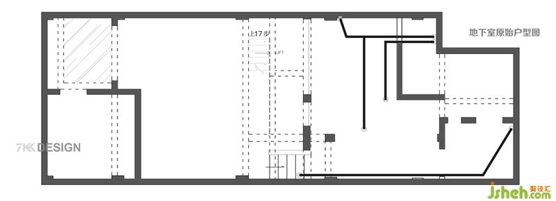
地下室原始户型图 通风差和采光弱的问题是所有地下室的通病。

地下室改造后平面布局图 地下室使用面积有145㎡ 地下室把原始楼梯改到南边一侧和一楼挑空设计,为地下室引入更多自然光线,达到更好的通风效果,地下室主要功能为影音室和儿童游乐园,为儿童打造梦幻天地。

(一层和二层)夹层原始户型图 原始一楼到夹层的动线,使得夹层和一楼互动比较独立,由于一楼的卫生间拆除,要借用夹层的空间设计卫生间区域。

(一层和二层)夹层改造后平面布局图 夹层出去楼梯使用面积有25㎡ 1、把一层到夹层的楼梯位置改到和电梯一侧后,使得夹层和一层的互动更近距离,大人在楼上做事情可以随时看到孩子在楼下的动向。 2、中厨一字型设计,采用移门更节省空间。原始餐厅空间设计成西厨加岛台功能。一侧定制到顶的高柜,容纳设备柜和更多的储物功能。 3、缩小原始中厨的面积,靠窗腾出的空间设计卫生间,保留马桶和台盆的功能。卫生间门一侧斜角处理,为了容纳马桶的空间,让卫生间使用更宽敞舒适。

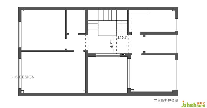
二楼原始户型图 二楼的错层结构使得走廊空间很有仪式感,二楼主要作为休息区域,书房功能,衣帽间功能使用。楼梯一侧的空间原本是外面的露台空间,到三楼都是镂空的,为了增加使用面积,重新搭建。这样二楼和三楼都多出一块使用面积。 

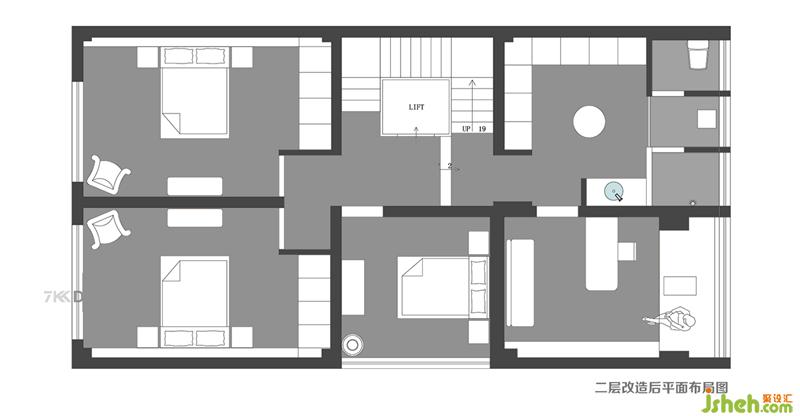
二楼改造后平面布局图 二层使用面积有90㎡ 1、电梯两侧是上下楼梯的位置,朝南的两间卧室一间为父母房,一间作为女儿房。中间搭建的房间作为客房使用。 2、错层上来北边的空间,一间作为多功能书房,另外一边是衣帽间,卫生间三分离设计,台盆外置和衣帽间同一空间,马桶和淋浴空间都靠窗设计,达到很好的通风效果。

7KK设计

设计收费:面议 元/平             

擅长类型: 家居住宅,别墅豪宅,商业展示,办公室,餐厅,咖啡厅,医院,会

在线咨询

扫描二维码关注我们的微信

深圳市聚设汇文化传媒有限公司
主编热线:15602987227
总部:深圳市罗湖区梨园路128号宝能汽车大楼416单元
佛山、东莞、成都、重庆、福州、厦门、南昌、武汉、
杭州、苏州、温州、郑州、长春、沈阳、贵阳、柳州、
哈尔滨、九江等城市设立办事处
© 2017-2021 Jsheh.com 版权所有 粤ICP备17079093号
展开
回到顶部