设计公司:7KK设计
户型:三室
使用面积:80平米
房屋位置上海 青浦
装修花费25万元
FOREWORD
说在前面
本案屋主是一对中年夫妻,男主人绅士有品味,女主人温婉又时尚,如果他们有了小孩一定也会很优秀,但是他们却选择了丁克,不要小孩,他们说很享受两人的世界,想要追求纯粹的爱情,即使结婚好多年,两人的感情却丝毫不减。对于追求高品质生活的夫妻来说在自己家的装修设计上更希望能个性,独特些,但是房子本身是精装房,而且交付的情况只能说是凑合,而他们是不愿意凑合的,所以找到了我们希望重新翻新。 他们很喜欢音乐,希望所到之处都能听到喜欢的音乐; 他们都爱看电视,希望有超大屏幕的视觉享受; 他们也爱收藏精美的摆件,希望能有可以展示的空间;他们平时在家办公,需要独立书房; 虽然父母离他们居住的不远,也要预留父母偶尔入住的空间; 他们的衣物比较多,平时也比较注重仪式感,需要预留衣帽间及化妆的空间; 即使人不多,也想保留原始的两卫功能。 最终这套三房两卫的精装房在他们要求不大动原始硬装格局的情况下,设计师通过局部小改、软装搭配和对选材的严格把控,为屋主量身定制了符合他们两人生活习惯的设计规划。整体的风格利用工业风做旧的概念将原始的魅力与现代时尚质感结合,在碰撞与融合中,彰显出独特的诱惑张力:时尚、个性。
空间展示
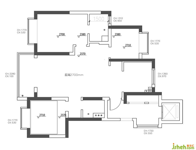
- 户型图 -
房子属于一梯一户房型,所以玄关换鞋处就放在了楼梯到进门的走廊里。 原始户型图 1、从平面图上进门就看到凸出的墙体,影响视觉和感官; 2、南次卧和北次卧空间都比较小,如何利用空间,需要考虑; 3、整体收纳空间比较少; 4、主卧主卫正对着床入住舒适性很差,开门的位置也影响了主卧收纳功能; 整体装修风格及色调和屋主想要的类型不符合,地板及墙面装饰都需要重新翻新。
改造后的平面布局图 秉着平时只有两个人生活的状态下,将空间功能达到舒适理想化的布局,让家拥有更好的生活体验感。 1、将进门看到的凸出的墙体打掉,利用走廊的空间定制餐边柜,增加餐厅空间的使用功能。同时岛台与餐桌的设计也提升家的品质; 2、厨房移门设计,可封闭可开放,增加空间视觉效果和互动性,; 3、客厅阳台作为生活阳台,一边放置洗衣机烘干机+水池,一边靠墙定制到顶的柜体收纳使用。阳台纳入室内空间,增加视觉感; 4,、把主卫门改到过道,重新布局,主卧增加了一排衣柜作为收纳; 5、北次卧改成衣帽间结合梳妆功能,与主卧和主卫形成套房模式,全方位提升使用功能,拥有更好的品质生活体验。 6、将原始主卧门改到客厅一侧,做成隐形门,与电视柜和餐边柜齐平,突出整体效果; 7、南次卧做成了多功能房,兼具书房+影音室+次卧的功能。只需要一张沙发床,就可以解决,父母或者朋友临时居住时,打开沙发床即可。
- 客厅 -
客餐厅空间。客厅餐厅位于同一空间内,开放式的设计增强了空间感,在简洁俐落的现代基底中,做旧质感的木地板与金属、皮革、石材等元素和谐相处。 电视背景墙与餐边柜齐平,中间设计了隐形门使得整体空间更完整大气,增加神秘感。
隐形门打开状态。
整体配色都凸显出简洁大气之感,通过材质来不着痕迹地表现出主人对于品质生活的追求。餐厅背景墙采用木饰面造型拼接,内嵌黑色不锈钢线条,个性时尚。

客厅改造前: 1、墙面拆除,沙发背景墙刷带带点灰度的乳胶漆,内嵌黑色不锈钢线条; 2、地板为了符合工业风做旧的元素全部拆除替换; 3、原始灯带比较偏黄,重新更换灯带; 4、吊灯灯具更换成主灯,增加空间层次感; 5、阳台将原始的玻璃门拆除,阳台客厅一体空间更宽敞。
客厅改造后; 客厅选用棕色的三人皮质沙发、提亮整个空间,不会让空间显得沉闷!皮质沙发自带着一种粗犷沧桑感,与做旧的地板结合凸显复古的感觉,搭配地毯可以提升家居品质温馨的感觉。

电视背景墙从居住者的需求出发,以抽屉立体柜的组合形式强调收纳,贴合空间尺度的同时又不显得压抑。男主人比较喜欢音响,每个空间都有音响,电视也是选择大屏幕的,拥有超大高清的视觉享受。 将阳台纳入客厅,不仅可以加强客厅的纵深感,而且阳光透过窗帘洒进房间,让整个空间更加宽敞、明亮。金属和玻璃材质的茶几,在加入几何元素的摆件之后,更加出挑,给空间带来了不一样的时尚感。
客餐厅、厨房采用了开放式布局,纵向延展,两两互通,整体空间更加开阔大气,同时让家人间交流更便捷,营造和谐地居家氛围。 原厨房的茶色移门换成灰色移门与整体色调更协调,当不做饭的时候可以把门打开,增添空间的通透感,同时为房间带来更多的光线。
客厅沙发背景墙采用灰色乳胶漆内嵌黑色不锈钢线条,沙发一角搭配黑色的落地灯,顶部选择个性黑色铁艺造型的主灯,整体呈现出干净利落的线条之美,经典时尚。
客厅沙发角落里放上了一盏线条感十足的落地灯,当开启灯光时,家居氛围瞬间变得格外温馨。
阳台另外一侧做顶天立地的储物柜设计,为家里增添更多的储物空间。

