欢迎光临聚设汇,装修找设计就上聚设汇!
   咨询电话:15602987227
登录    注册
聚设汇
首页 > 家装 > 思 享

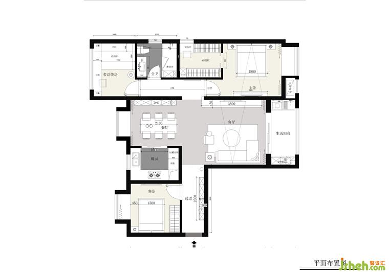
思 享

卧室

丝绒的亲肤感,让身体的疲惫感散去;大面积的灰色空间,或许原木地板点缀,归于舒适与品质。

卫生间

合理的收纳空间,美观的装修材料,一个摩登炫酷的卫浴间背后,也藏着一颗精致的灵魂。

当我们踏入一个柔和的空间

浮躁、不安、倦感慢慢褪去

那些灵动的、平静的、松弛的、温暖的碎片

渐渐围绕起来

厦门好易居装饰有限公司设计总监

设计收费:300 元/平             

擅长类型: 住宅

在线咨询

扫描二维码关注我们的微信

深圳市聚设汇文化传媒有限公司
主编热线:15602987227
总部:深圳市罗湖区梨园路128号宝能汽车大楼416单元
佛山、东莞、成都、重庆、福州、厦门、南昌、武汉、
杭州、苏州、温州、郑州、长春、沈阳、贵阳、柳州、
哈尔滨、九江等城市设立办事处
© 2017-2021 Jsheh.com 版权所有 粤ICP备17079093号
展开
回到顶部