项目地址 丨南京金鼎湾
项目名称 丨减法•加法
设计机构 丨木桃盒子
项目摄影 丨Emma
地板丨久扬
全屋定制丨春山慢
乳胶漆丨加拿大彩马
艺术漆丨意大利STUCCO灰泥
洁具丨高仪、杜拉维特、汉斯格雅
本案是一套旧房改造案例,原有结构不够合理,客厅和餐厅之间相对独立,都比较小气,并且餐厅的采光并不好,各种过道也过于杂乱,厨房面积过小。南京装修设计主卧和次卧之间门口动线稍有冲突,并且次卧为内窗,采光和换风功能不尽人意。居住空间储物量紧张,各个空间之间关系比较零碎,整体空间结构分割过于散乱。

左图:原有入户,餐厅看向客厅,入户体验感不好;
右图:原有客厅,现已改为次卧室。
因此做了以下几点进行优化处理:
■ 客厅和次卧室对调,让客厅和餐厅一体化,让整个空间规整明亮,通风顺畅,光线通透。
■ 鸡肋的北阳台归纳给厨房,扩大了厨房面积,增强实用性趋于合理,同时拆除墙体后,增加采光量,视线开阔。
■ 南阳台归纳于客厅,进一步增大客厅面积,同时利用承重墙体结构,制作写字台,增强互动性,让阳光真正洒进客厅。
■ 洗衣机烘干机嵌入柜体,至于公卫干区,并制作储物柜用于存放洗衣用品及杂物,让整个空间更加整洁。
■ 微调主卫墙体,调整主卧和主卫之间的面积关系,置入大量储物柜体,让主卧既实用且个性。
■ 在入户处和客厅巧妙地处理了鞋柜与电视墙面的关系,制作壁龛放置视听设备,放弃了传统电视柜,让整个空间简洁明快。
■ 思考三个卧室的入门位置和处理方式,让各自保留隐私,并巧妙地运用隐形门方式和整体风格更加协调。
■ 利用儿童房原有结构,布置上下铺,并制作书柜、写字台及储物衣柜,南京装修设计并根据使用需求,摆放架子鼓,在有限的面积中置入多种功能,多种可能。
■ 根据整个空间氛围定位,在家具软装的选择以及色彩的控制上,做到克制,让整个空间更加纯粹干净,明快简约。
▲丨原始结构图丨
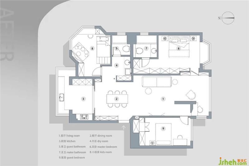
▲丨平面布置图丨

▲丨SU轴测图丨
©网图
关于设计出处或所谓灵感的来源,未来与复古并存,给人不一样的感受。如上图,银色朋克的机械感和未来范的整体造型,让人很难说清这是过去还是未来。
©网图
关于未来与复古,并不冲突,一定程度上荧光色、不锈钢和幻彩色可以交融体现。南京装修设计适合的就是好的。
客 厅
Living room


