项目名称:精致生活不负时光|骏乘星都汇公寓
项目地址:中国.莆田
项目设计:福建莱恩装饰工程设计有限公司
项目软装:福建莱恩装饰工程设计有限公司
主创设计:郑永春
空间摄影:陈荣坤
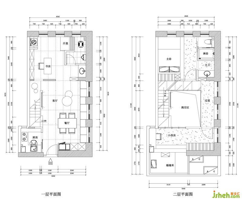
建筑面积:64㎡
项目简介|Project Profile
骏乘星都汇公寓位于福建莆田涵江商业区附近,楼盘以商住两用的公寓为主,本案位于2号楼18层,面积约64㎡,双面采光。本案的业主是一对年轻的企业高管,热爱旅行、对待生活有着自己独特的理解和追求、不妥协不将就。
客厅大面积挑空和玻璃栈道的应用起到了拓宽了视觉维度,装修设计让空间显得更加流动开放及富有层次,通顶的装饰画取材自凡高的画作,充满激情的金色笔触仿佛就像餐桌上的花束,蓝色的星空下一个人一本书让空间充满了无尽的遐想……
餐厅就餐时,特别订制的楼梯装饰射灯光线照在花束上,不仅烘托出温暖的气氛,更是勾起热爱旅游的业主无限美好回忆:一线天、陡峭的上山台阶… 嵌入式的蒸烤箱可以解锁更多的美食诱惑,冰箱也是男业主精心挑选的,超薄极窄可以做到无缝对接餐边柜。









