设计公司:莱恩设计公司
设计师:郑永春
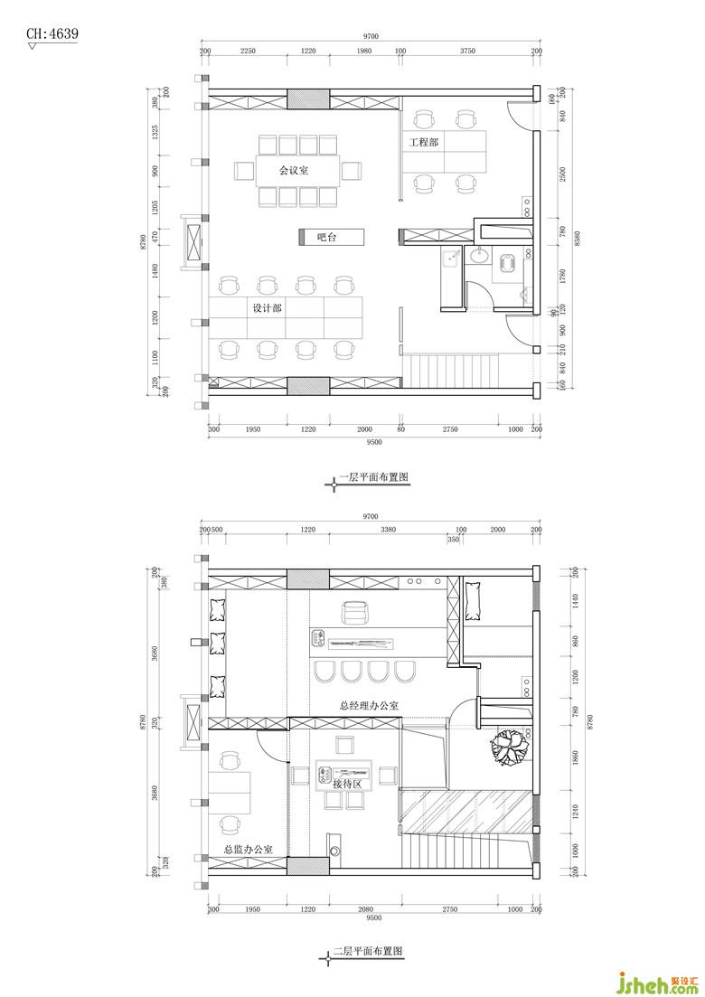
项目地址:深圳
本案为莱恩设计公司的办公空间,位于整个办公楼中间的标准层。

为公司的可持续发展做出准备。 在办公室设计手法上不放弃原有建筑空间的规矩和朴实,强调室内空间形态和物件的单一性、抽象性,让细节看上去简洁,达到以少胜多,以简胜繁的效果。
楼梯内侧精心绘制的抽象白桦林则让空间多了一份生活趣味,置身其中犹如身在辽阔平原,可以大口呼吸消除工作的疲惫。

入户门随机的白色腻子底像一层层的波浪,同时与入户玄关的白色灯带和景观沙池形成呼应,办公室设计的黑钛门框及LOGO背板又和工业风的黑色不锈钢楼梯、玻璃栈道、以及玄关的建筑原墙和地面的灰色麻面大理石砖形成一个整体。
办公室设计

玻璃栈道边的挑空围挡内侧精心设计了精细的亚克力灯带,同外侧的黑钛嵌条形成对比,办公室设计进一步丰富了空间细节,同时达到功能,结构和材料的完整统一。
办公室设计
