设计 | 欢乐佳园 张小龙
项目 |成都 龙湖三千庭
项目面积 | 160m²
设计风格 | 现代简约
”久在樊笼里,复得返自然“
从花园
展开对生活温柔的叙述
Long in the cage, return to nature
From the garden Unfold a gentle narrative of life .
▲业主需求:主要节假日过去休闲度假居住,从繁华热闹到宁静舒适。主要是老年人常住。希望给到两个小朋友更多的活动空间。
▲4个卧室,1个儿子房,1个女儿房,1个老人房和主卧。小孩房都要考虑书桌。
▲设计思考:如何让空间互通来增加小朋友的活动空间。
▲设计思路:活动空间,休闲,简洁
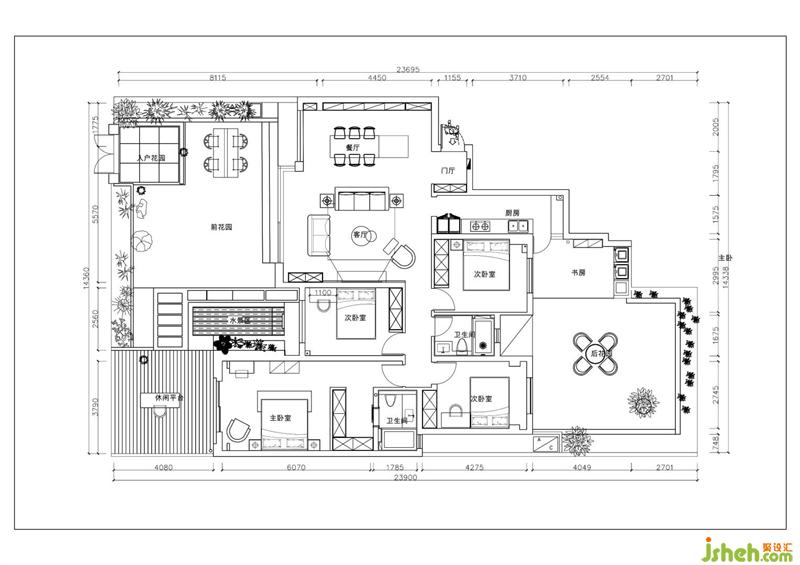
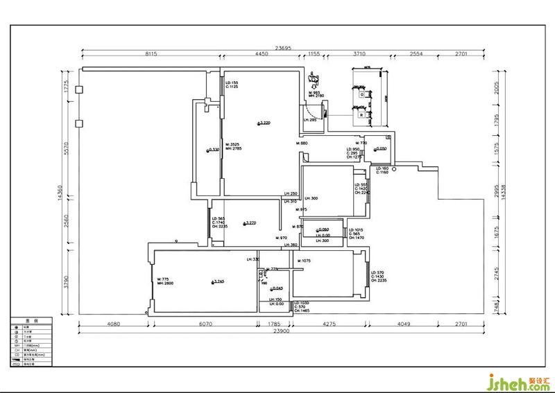
原始结构
1. 将原客厅外阳台纳入客厅餐厅扩大客餐厅空间,让餐厅和岛台连接形成“洄游”空间,来增加活动空间。落地窗将窗外花园空间全部纳入室内。保证了人在室内也可以完全欣赏到室外风景。
2.成都装修设计将卧室飘窗拆除,来扩大室内空间,保证儿童房有足够的空间来放下书桌,并保证有足够的光线进入室内。
3.花园地面大面积硬化,靠围栏做花池。既满足了活动空间,也解决了花园打理的难题。
▲平面布局图
岩石肌理的背景墙与木的温存,已然能让人感受到来自大自然般的粗犷感。在富有质感的空间中,这些沉寂的色调、简约线条展现出一种侘寂的素净之美。也更能让让木的温润和质感渗透到设计里的方方面面。

原客厅外阳台纳入客厅餐厅扩大客餐厅空间,让餐厅和岛台连接形成“洄游”空间,来增加活动空间。餐厅家具融入了“古风”的元素,温文尔雅的中式风在温馨的空间氛围里,展现着艺术的多元化。

主卧仅以一定比例的“实木”勾勒出优雅而高级的质感,成都装修设计以低饱和度的“高冷”姿态,重塑匠心独特的艺术品格。背景墙采用白色+实木+木条的设计,强化空间层次的变化,让整体空间显得更加时尚活泼,优雅又大方。
