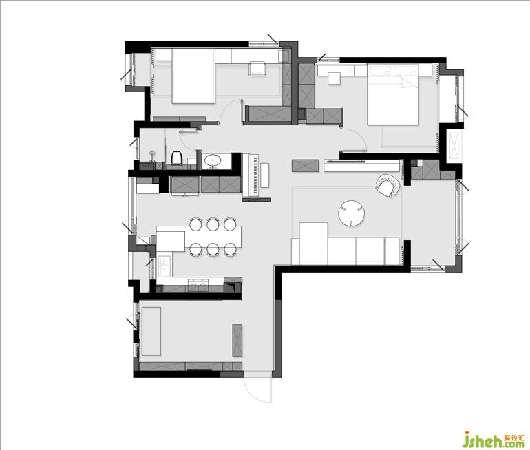
l 小孩房在布局上尽量预留更多的活动空间,所以衣帽间和卧室区域没有做分隔,只在靠墙的位置做了储物,让空间尽可能通透。
l 主卧将原本的卫生间改为带窗户的独立衣帽间,武汉装修设计很好的提升了生活品质。




软装设计:
本案是在大面积的白色基调下,加入水泥灰,魅影黑,木饰面,在合适的比例下,武汉装修设计让布局、色彩与生活产生内在联系,使得心灵有种自然的回归感。背景法式线条和木饰面的组合,现代与古典的碰撞,似乎不是一种风格的材质,组合在一起,确意外的好看,无声的述说浪漫的生活情调。木色的加入同时也为空间注入一抹温暖。主卧室背景木饰面与灰绿色石膏线条墙面搭配,营造出自然复古的味道,小孩房则利用干净利落的线条加木饰面的设计,清爽冷静,加上材料的质感和比例分割,给空间带来不一样的气质。



更多武汉装修设计请关注聚设汇装修平台: