户型:3室
费用:40万
项目面积:100平米
项目位置:深圳·益田村
设计风格:现代简约
设计团队:见微陈设艺术
故事原型 :
女主人是个理科“杠精”,特别爱学习,爱钻研装修
对家的诉求:
新家要整洁,符合生活流线习惯,好打理,品质感,符合三世同堂的居家习惯,同时通过装修提升生活品质
设计感悟 :
全屋整铺的1200*600的水泥瓷砖铺垫了全屋的基调,也非常感谢屋主全程的信任,厨房半开放式的设计也很得老人家喜欢,尤其是在做饭站久了可以趴在吧台上小憩一下,阿姨对这个设计赞不绝口。
很开心最后看到成品的展现,和当初设计稿的初心一脉相承,开阔敞亮最大化每一寸,回归装修的本质,追寻返璞归真的真谛。
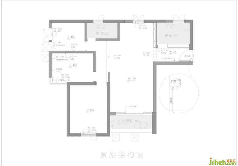
户型图:
户型缺陷
卫生间位置十分尴尬 ,餐厅位置偏小、不实用 ,厨房餐厅流线不方便 ,阳台过大、空间浪费。室内设计师
改造后:
卫生间干湿分区,厨房餐厅布局改造,将阳台扩大到客厅。小孩房改成双开门,进一步扩大空间对流,增加门厅收纳的同时,吧台的融入可以很好地改善原本空间狭小冗长的问题。
玄关
门厅必备功能:
穿衣镜
放包包
整面的鞋柜
充足的光线层次
男士双肩包等大件物品的收纳
阳台对于寸土寸金的一线城市来说是奢侈品,两层的推拉门既遮挡光线,又隔断空间的连贯。
封阳台拆推拉门,一个烘干机就可以解决晾晒的问题。 老房子层高不高,又想要无主灯的话。
可以参考这种白色明装灯,光效会比大吊灯好很多而且不压抑。
书柜
柜子对于空间收纳固然是好
但如何做的恰到好处又提升美感则是一门艺术

光影斑驳 ,映在洁白的墙上,,生活回归本初——极简去繁,感受温暖的阳光。
一个舒适的家才能让人留恋不舍,大面积的水泥瓷砖平铺,灵感来自于安藤忠雄,大量的白色x原木色交错,给人满满的闲适感。
儿童房改造成了双开门的设计,能够将阳光充分捕捉,通风又开阔。室内设计师
餐厅
超六米的厨房,采用中西分离的方式,当代家用小电器种类繁多,西厨台还能发挥整洁收纳的功能。室内设计师
