


▲口袋展示区 /pocket spaces
这种空间设计不仅提升了购物的互动性,还让消费者在探索的过程中建立独特的记忆点,使购物体验不只是购买商品,更成为一场妙趣横生的冒险旅程。
让探索成为sômthin'else 的日常
长沙店的诞生,不仅是sômthin'else 品牌理念的延续,更是一场与城市气质的深度对话。它汲取了潮宗街区的松弛、包容与自由,以创新设计打造梦幻、奇遇与探索并存的空间。这里不仅仅是一个零售店铺,更是一个可以随心停留、自由探索、偶遇惊喜的场所。在这里,创意与生活交织,探索与松弛共存,每一位踏入这片奇幻之地的游客,都能找到属于自己的奇物与奇遇。
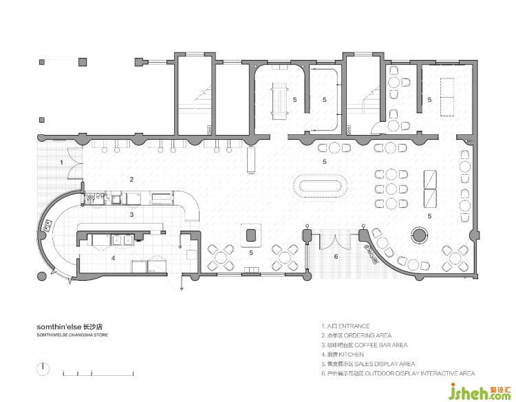
▲平面图Plan©域式建筑