卧室背景墙上半露的抽象涂鸦装饰画,与整个空间既融合又碰撞。不仅与整体色系相协调,更增加了卧室的精致感。成都家居设计灰色棉麻床品让需要真正休息放松的人们达到它最大的目的,拉上蓝色遮光窗帘,即使在耀眼午后也能沉沉的睡一觉。
白天VS黑夜,在大胆与cool之间寻找身体的舒适感,「在这里迎接每天的第一缕阳光」。

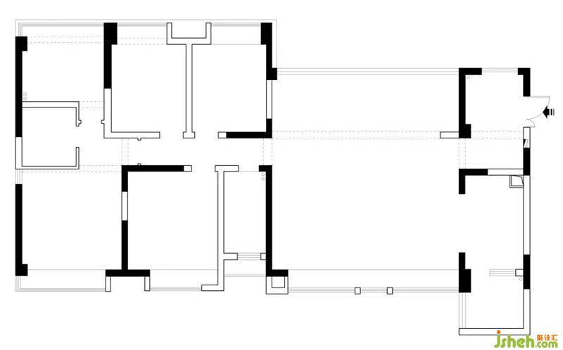
原本从主卧进卫生间的空间通道尺寸很小,而且衣帽间也很小,不方便使用。通过对墙体的拆除,将衣帽间的空间打开,在进门处设置玄关柜,把衣帽间与卫生间结合在一起,让空间动线更为方便,同时空间也更加开阔。

配合整体的格调,卫生间选用深灰色的瓷砖,搭配白色台盆柜让空间舒爽干净。用最简单的细边框磨砂隔断分割出若隐若现的私密空间。马桶背后的个性挂画,戏虐中又带着一些轻松感。

粉色,是少女对梦幻的追寻,陪伴每一个夜晚。深浅粉色漆的碰撞,让空间温柔而不失个性,矮矮的收纳柜,收藏着心爱的故事书,是童年的美好回忆。
成都家居设计对空间的重组,可以让生活更加有序。拆除书房与次卧之间的墙体拆,对空间重新进行分区,创造出更多的储藏空间出来,大面的书柜用来收藏业主的手办、游戏卡、书籍等。
越长大越孤单,成家之后的我们对家的期望不仅仅是一个可以安顿的地方,更多的是对家有更多的期许。 新的设计、新的理念、新的产品让整个居家重新焕发生命。
最终平面改造
更多成都家居设计请关注