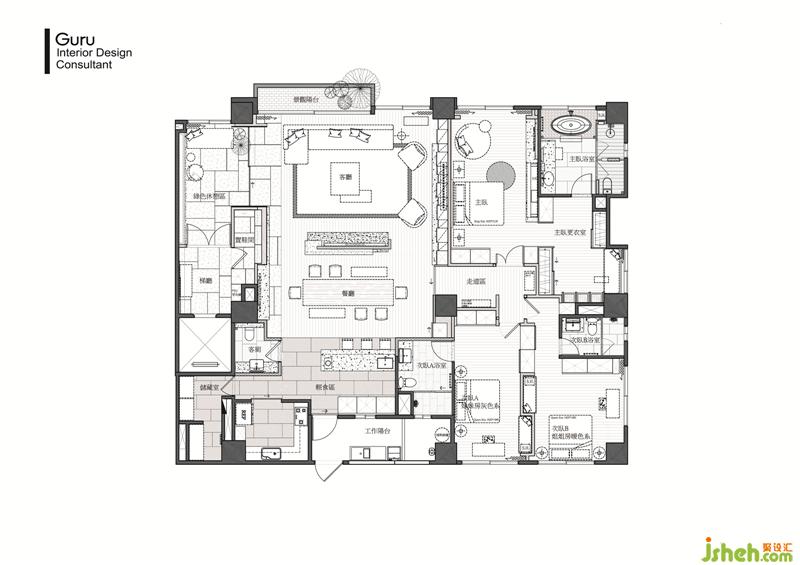
设计重点二 十字轴线+平行聚落 空间极限利用
公领域采自由通透、机能独立、景深共享的聚落式规划,并活用多重异材质混搭、组接工艺,同步完成场域机能分区与丰富空间层次、独创优质生活观等多重目的!设计关键在于分野公私领域的十字动线为主,包括中岛轻食区、餐厅长达三米八的订制长餐桌、电视半墙轴线和客厅长沙发等数道平行机能阵列为辅,结合软硬量体的操作,精准分配既有空间,并逐次定义客厅、餐厅、轻食吧台区等多个机能单元,其中长餐桌堪称公领域机能核心,家庭成员间日常作息的休闲互动,基本上都聚合在此区进行,但即使人员散布于周边其他单元,也不影响全案预先设定的景深共享、机能互补、乐趣情调倍增等人文特质。
设计重点三 点状密布的休憩聚落
全案出色的软硬体、家具配置,是空间美感重要的发散源之一,像是客厅造型简约的酒精壁炉、精选的各式家饰、坐具,还有光影、窗景,都是这幅画里的重要构成。我们观察阳光一整天在不同方位的光向、照度,于屋子每个角落,创造出多点分布且舒适的休憩聚落,好确保光合作用随时、随处都能进行,而宅中四处活动的家人们,也能深刻感受空间的活力,与像是被家亲昵拥抱的情感皈依。此外,空间中仿剧场聚焦式的重点照明也是一大特色,不仅有助于表现空间层次、强化场景张力,更能提升特定时刻所需的氛围效果。 (例如一边品酒、一边欣赏无敌夜景的浪漫夜晚)
设计重点四 善用材质营造视觉连续性
全案材质搭配强调纯粹、高质感、自然而不单调,在色系与种属上刻意降低对比性,像是大量天然石材、消光处理的木质、特殊环保涂料等等,更和谐无压的柔焦效果,与市场主流的鲜明棱角反向而行,而涵盖天、地、壁个别的造型面、机能阵列,藉由量体交叠来实践活泼的室内建筑概念,异材质的混搭、组接艺术则广见于天转壁、壁转地的衔接,一方面巧妙模糊空间边界、提升视觉连续性,对于独创美感、工艺高度的体现也更全面!
设计重点五 现代居宅必要的各项考量
健康、舒适、温度、当代简约风格,都是阐述本案设计精神的关键词,首先全室装设地暖、除湿、空气循环系统,搭配能够有效调节室内湿度、吸附异味的珪藻土施作,积极创造空间永续的健康体质,相关选材用料也以亲自然、耐候性佳、并强调低限加工的木、石、砖类为主,赋予场域恒定的温度与舒适,其间重点式穿插镀钛金属、镜面等前卫素材,在最佳化的自然疗愈量能之外,低调传达过人的精致和设计品味,一种抬头为「历久弥新」的当代风格也由此诞生。装修公司




装修公司


