项目名称:
室内设计:悦嘉装饰设计有限公司
软装设计:悦嘉装饰设计有限公司
设计负责人:黄运纯
项目地点:柳州市彰泰红私宅设计
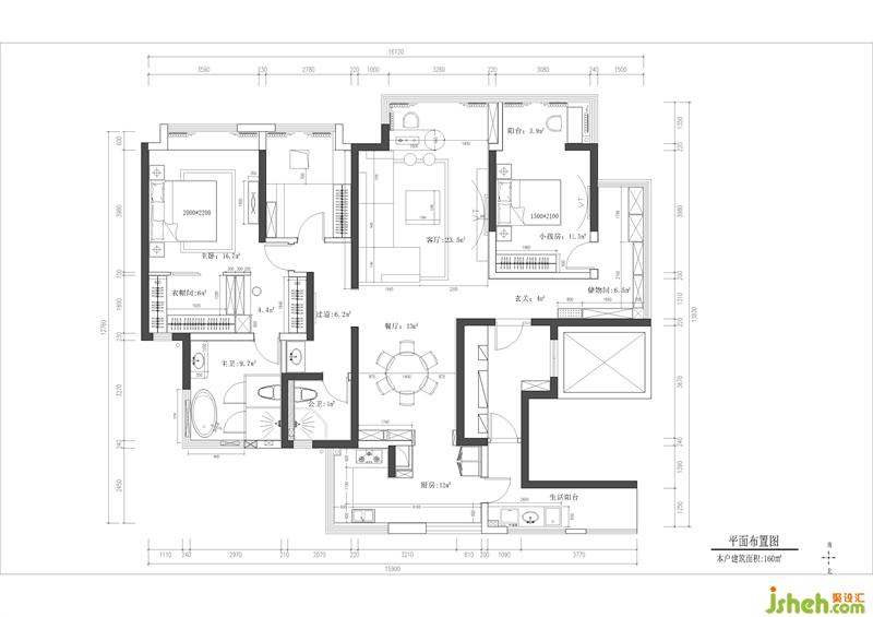
项目面积:160㎡
完工时间:2020年11月
材料品牌:欧瑞博智能家居、企一照明、巴黎世家柔光砖、TOTO卫浴,森美全屋定制。
积极、且努力的一生
都在向往和实现自由
时而经历挫败、抗住磨难
抑制戾气,静养修身。
本案主人公为广西最长隧道的建造商,出差外地居住五星级酒店,生活品质很高,对于房屋的设计需求也很专注,按照五星级酒店的标准进行融合设计。
其实他的要求也是私宅设计师认为的一种现代家居的生活方式,我们非常希望能将这种方式通过此次案例展现出来。
本案是本年度完成度及高的作品,不仅有本案设计师、悦嘉团队所有人努力,更要感谢本案屋主的信任和配合。本案从开工至毕业照拍摄完成,整整一年的时间,与屋主的相处,从一位大人物渐渐变成互相信任的朋友,任何细节的对接,材料的选配,都非常有默契,因而也更加高度的还原设计图,有品味的他很能理解并欣赏设计师的设计能力和理念。
客厅空间整体基调都以素色雅致为主,开阔的空间布局带来了极佳的视野和光线,把景观阳台纳入客厅使用,增加了客厅的通透性,极简空间里点缀着一小片靛蓝,随着阳光消隐,室内会愈发清简而开阔.

灯光对于现代家居也极为重要,选择好灯光才能更有效地提升空间氛围感,体现材质的最佳状态,私宅设计师运用了很多点缀光与辅助光源,比如窗帘盒灯光,各地方暗藏灯等。并在方案里推荐了智能系统,设置好灯光情景模式,回到家仅用语音控制就调节我们日常所需的灯光氛围。


私宅设计装饰一切以质感、清爽简洁为原则。客厅和餐厅连接,增加了空间之间的联动性,在主材上选用了布纹板、木饰面、不锈钢、玻璃质感的材质,让整个空间显得精致。天气晴朗的时候沏上一壶好茶叫上几个好友到家里做客,一起感受带有茶香的阳光。
