项目信息
项目地址:柳州
项目名称:中房紫东·住宅样板房设计
硬装设计:悦嘉设计
软装设计:悦嘉设计
主案设计:何虹霏
设计团队:蔡翔伟、王思路
软装执行:吴霜、韦瑞
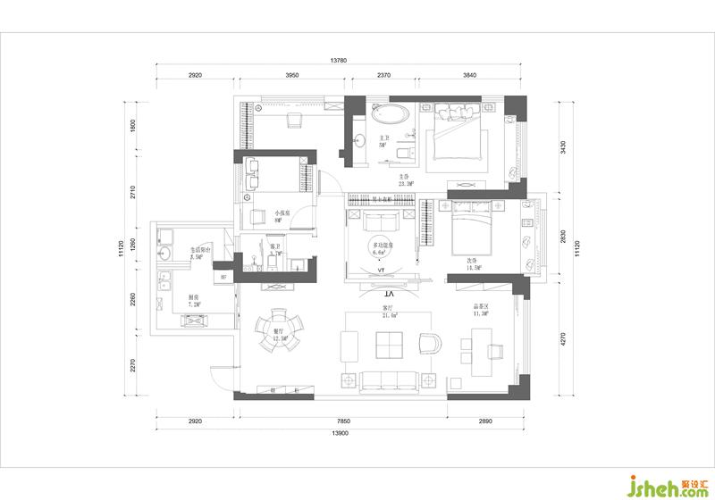
项目规模:B户型175㎡
空间摄影:雷天鸣
柳州样板房设计位于桂中大道的中房紫东,龙城文化底蕴的铺展,为这个奔忙与世俗的社会断然注入一方清境,叙说着生活片段,在空间中描绘湖景诗意,清雅而自然。
运用现代手法阐述返璞归真的东方美学精神内核,诠释一处契合城市雅贵内心之所向的现代中式人居空间,传递源远流长的古典情怀,给予奔忙都市里懂得生活的人一处归心之所,寻得生活之本真含义。


一间有风景的家。
将青山环绕,水抱城流的风景引进屋子,投射在室内的一整面墙上,不是描述一个梦幻脱离现实的世界,而是在写你本来悠然的生活空间。

将常规的阳台,围合成一个会客品茶的茶室,煮水沏茶,笑语闲谈,好不清悠……

餐厅一脉相承于古朴素雅的文化底蕴,圆桌团聚谈笑,还可欣赏像是透过圆窗看见的远处美丽山水。