专案地址:温州现代锦华城
设计执行:陈建静
专案面积:135㎡
施工日期:2019年
设计公司:温州原石空间设计
新年的脚步马上要来临,忙碌了一年的我们收获了很多,终于有点时间静下来可以拍一点自己的作品了。
本案业主是做软装窗帘的经销商,我是他的客户,她这次也成了我的客户,姐姐对我没有特殊的要求,只是盯嘱过不要过于超前,一切以简约实用为主。

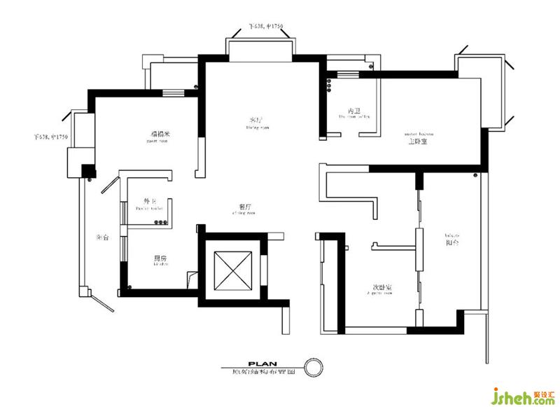
原有建筑存在几大缺点,北面厨房比较小 ,厨房外阳台没有充分利用,南边阳台过大,房间较小,中间区域空间存在不合理的空间

优化后:原有厨房外阳台打通,跟厨房连成一体,外卫拓展成有干区的卫生间,使用率更高,榻榻米房和主卧的房门做成暗门的形式,与客厅整体饰成一体,使之简洁清爽,电视背景简化设计处理符合将来潮流的趋势,入口区增加了一个公共活动区(Public area),使入口原本较小的空间,有个缓冲的余地温州装修设计。

家是艺术的结合
总是给人温馨之感
一个独特与灵气的艺术品
静静的观赏,总会带给你生命的力量
你是不是也被这种独立的个性而感染
创意的摆件,代表对高品质生活的重视
温州装修设计

典雅浅灰的瓷砖
一件有灵魂的艺术品
整体效果简洁大气
细节细腻,耐看
初见优雅静谧
久处相素静好
艺术价值和人文气息喷薄而出
简约地纹理与色调也能配出久处不厌的空间

家 不是装饰品的堆积
更是家居情感 连缀着家庭
亲情在享乐之外还有感情的寄托
平衡对称的布局辅以摆件的触感交织
简约线条孕育现代感还原轻奢生活的本真
温州装修设计
主卧室
