欢迎光临聚设汇,装修找设计就上聚设汇!
   咨询电话:15602987227
登录    注册
聚设汇
首页 > 商业 > 覔书店广州黄埔大悦汇设计

覔书店广州黄埔大悦汇设计

在这次从传统的商业书店到文化型共享社区的设计实践中,设计团队在开放的基础上,以更加现代包容的方式,打造复合型的城市文化空间,为城市带来更多活力。

 

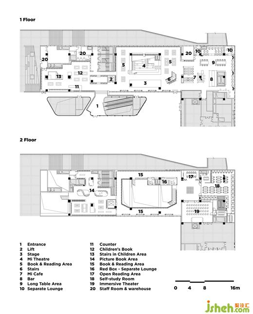
平面图

更多书店设计请关注聚设汇装修平台:

MOC

MOC DESIGN OFFICE

设计收费:1000 元/平             

擅长类型: 店铺、影院、文创

在线咨询

扫描二维码关注我们的微信

深圳市聚设汇文化传媒有限公司
主编热线:15602987227
总部:深圳市罗湖区梨园路128号宝能汽车大楼416单元
佛山、东莞、成都、重庆、福州、厦门、南昌、武汉、
杭州、苏州、温州、郑州、长春、沈阳、贵阳、柳州、
哈尔滨、九江等城市设立办事处
© 2017-2021 Jsheh.com 版权所有 粤ICP备17079093号
展开
回到顶部