02.层层递进的体验旅程
作为一个综合性的商业空间,惠而浦之家不仅需要满足品牌文化展示、体验展厅和活动论坛场地等多重需求。体验中心设计师将不同的功能置入不同的楼层,使来访者在层层递进的参观旅程中,获得从文化、体验到产品的完整体验。
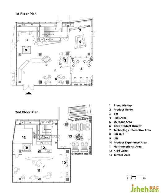
平面图,Plan
一层围绕棱镜装置,构筑出整体冷峻科技的空间调性。

多媒体互动展项的融入,来访者可以从中了解品牌发展历史、品牌核心技术等内容。

展厅的另一侧规划为洗衣产品技术展示区。体验中心设计师将产品进行解构展示,墙面的互动装置游戏让参观者轻松的了解枯燥的技术细节。

产品拆解展示
投影互动游戏
毗邻休闲步道一侧的咖啡区配合可开启的幕墙,体验中心设计将室内的空间向室外进行延展。
打开幕墙,将室内外连通