项目名称:极氪中心西安南湖金座展厅设计
主持设计:杨振钰,梁宁森
设计管理:吴岫微
设计团队:吴峰、吴锐楠、吴心鸿
项目面积:380㎡
设计周期:2022年5月-2022年7月
完成时间:2022年11月
主材:天然砂岩、岩板、镜面不锈钢、金色喷砂不锈钢、木地板、木饰面板、灰色地毯
业主:极氪汽车
摄影:云眠摄影工作室、有为视觉、樊豹声
西安是一个具有深厚历史底蕴的城市,作为世界四大古都之一,城中仍保留了古城的许多印记;而新能源汽车则具有强烈的科技属性;极氪中心西安南湖金座展厅设计如何在现代感的空间中回应古城的韵味,是本次项目思考的重点。
As one of the four ancient capitals in the world, Xi’an is a city steeped in profound historical heritage, with a plethora of ancient landmarks. Despite this, the strong attribute of technology possessed by new energy vehicles presents a challenge when it comes to incorporating the charm of this ancient city into a modern retail space. As such, finding ways to seamlessly fuse these two contrasting elements has become the primary focus of this project.
01/“犹抱琵琶半遮面”的动线规划
01/ Flow of movement in a hide-and-seek style
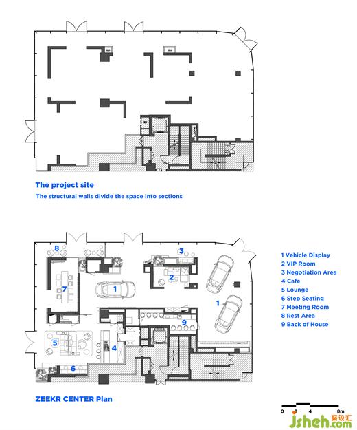
项目的场地位于一座现代公寓的一层,优势来自于三面通透的玻璃幕墙,极氪中心西安南湖金座展厅设计让空间具有很好的对外展示面,而劣势则是由于建筑结构的原因,空间内存在较多结构墙体,对展示效果产生大量遮挡,空间被切割得零碎。
The project site is situated on the first floor of a modern apartment building. One advantage is that there are transparent glass curtain walls on three sides, which provide the space with an excellent external display facade. However, the disadvantage lies in the structural walls of the building, which obstruct the display and divide the space into sections.
▼平面图
▼ Plan
▼店铺外观
▼ Shop façade
极氪中心西安南湖金座展厅设计结合场地条件,我们采取了一种全新的布局策略:不同于过往汽车展厅开敞式布局,而是依托于承重墙,在满足功能需求之外,创新式地将一台展车穿插进空间中部——无论在展车区、用户区与幕墙外都可以一窥展车的局部,通过趣味性的布局吸引人们进行寻找和探索。
Given these site conditions, we have adopted a new layout strategy. Unlike traditional open vehicle showrooms, we have arranged the space along the load-bearing wall and placed a show vehicle creatively in the center to meet functional requirements. This allows people to have a glimpse of the show vehicle from the display area, user area, and even outside the curtain wall. The layout piques interest and encourages people to explore and discover.
▼从室外看向空间内部,可窥探到展车的局部
▼ From the outside, a glimpse of the show cars can be seen within the space.

▼专属的用户区入口
▼ Exclusive access to the user area
极氪中心西安南湖金座展厅设计从展车区也可以看到空间中部的展车。在两个展车区域之间,我们依承重墙规划了VIP洽谈室,承重墙的外侧一圈则形成了开放式的洽谈区域。
The center show car can also be seen from the showroom. We have planned a VIP room along the load-bearing wall between the two show areas, as well as an open negotiation area on the other side.
▼嵌入空间中部的展车区
▼ Show car area in the center of the space

极氪中心西安南湖金座展厅设计洽谈室内的屏风画面以金箔搭配蓝色构成抽象的古城景象,回应城市在地文化。
The VIP room features a screen decorated with gold foil and blue, forming an abstract scene of the ancient city that responds to the local culture.