

手冲茶店设计在纯粹建筑感受的空间中,一个玻璃茶室被置入其中,茶室是传统茶道区,精致华丽的黄金屏风透露与空间中极简风格的碰撞,两者差异巨大又和谐相处。
In the pure and architectural space, a glass tea room is in place for traditional tea ceremony. The fine and gorgeous golden screen clashes with the minimalist style of the space, which looks so different, but harmonious.



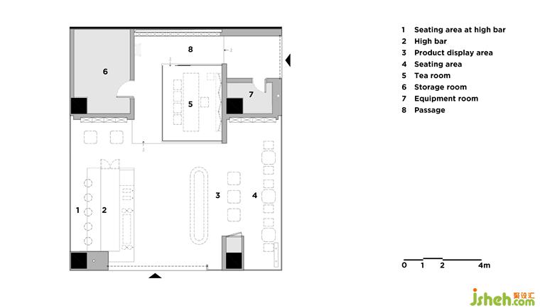
平面图,Plan
入口一侧极简的吧台则与空间呼应,吧台区更适合年轻人的饮用习惯,手冲茶店设计当人们在吧台前、天光下品茶,同时也可以看到中间玻璃茶室,感受到传统茶道的魅力。
The minimalist bar on the entrance side echoes the space. The bar area is more in line with young people’s drinking habits. When people are sipping tea in front of the bar and under the sky light, they can also see the middle glass tea room and feel the charm of traditional tea ceremony.
