项目名称:喜茶 - 新加坡克拉码头白日梦店
设计单位: MOC DESIGN OFFICE
主创设计师:梁宁森,吴岫微
设计周期:2018.10-2018.11
竣工:2019.1
项目地址:新加坡克拉码头河畔路
面积:250㎡
主材:肌理漆,白色人造石,喷砂不锈钢
业主:喜茶
摄影师:直译建筑摄影
喜茶-新加坡克拉码头白日梦店
HEYTEA Day Dreamer Project at Clarke Quay Singapore
灯塔
Lighthouse
坐落于福康宁山前方不远处的克拉码头,曾经是新加坡最繁华的码头,如今早已不再装卸货物,其旧仓库被保留下来,改建为休闲街区,喜茶在海外的第一家白日梦计划便选址于此。
Not far from the Fort Canning Hill, Clarke Quay was once the most bustling wharf in Singapore. Now it no longer served as a dock for the loading and unloading of cargoes and its original godowns are transformed into a leisure neighborhood. Here is where HEYTEA launched its first oversea shop themed on “Day Dreamer Project”.
克拉码头历史照片Clarke Quay in the old days
今天的克拉码头Clarke Quay nowadays

外立面 Façade店铺装修
透过外立面的玻璃盒子看进室内, Through the glass box into the bar
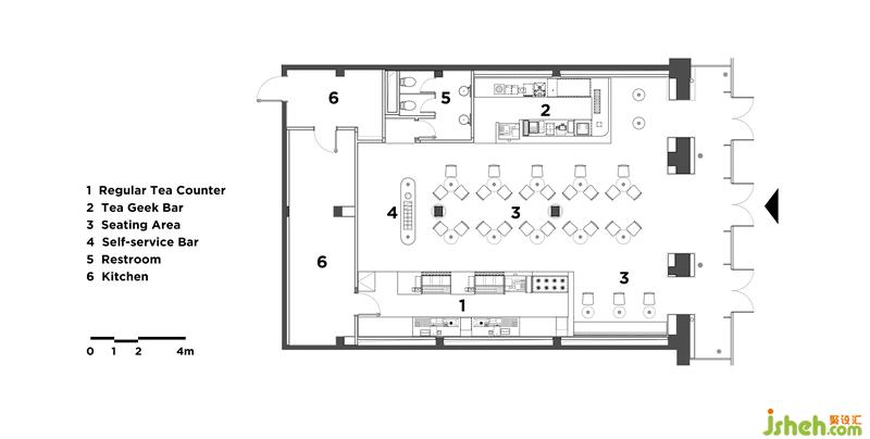
平面图Floor plan
MOC DESIGN一反克拉码头街区昏暗、为了营造神秘感而以封闭式形态呈现的思维,以开放的形式、一览无余的布局及明亮的纯白色调出现在街区中。受到福康宁山上的灯塔所启发,MOC DESIGN在有限的空间中以阵列的形式设置了20个灯柱,其中一些结合高桌进行设计以满足功能性需求。店铺装修
MOC DESIGN presents HEYTEA in an open form with a panoramic layout and a bright hue of white, in contrast to the dim and mysterious Clarke Quay streets in an enclosed form. Inspired by the lighthouse on the Fort Canning Hill, MOC DESIGN put up an array of 20 lamp posts within the limited space, some of which are fit with the high tables to meet the functional needs.

灯柱与圆桌结合,阵列式的呈现在空间中,Lamp posts fit with round tables in neat array