项目地址 |南京 ·大华锦绣时代
建筑面积 | 90㎡
设计风格 | 日系北欧风
设计机构 | 壹夲設計
创意总监 | 朱涛
项目主案 | 许冰
助理设计 | 王梦繁/葛庆业
摄影机构 | THE MORE视觉
主要材料 | 泓纳森全屋定制、维特鲁威地板、佳仕龙移门、三星中央空调、百色熊乳胶漆、集品饰品、叠致窗帘
烟火人间,饮食男女
春耕秋收,冬雪夏雨
过程或许就是生活的意义所在
它是连续的,积累的,变化的
在不同的时间段里反射变动的光线
映照各异的角度
......
--摘改自安妮宝贝《素年锦时》
写在前面
城市渐渐向北,生活渐渐向上。随着近几年南京江北新区交通和商业配套越来越成熟,越来越多的90后年轻一代把家安在了这里。对于在城市中生活打拼的人来说,在这座城市拥有一个属于自己的家,是很多人的梦想。本案业主也是这样,怀着收房的喜悦,开始憧憬未来家的样子。但是买房已将家中积蓄消耗得差不多了,留给装修的预算有限。考虑装修事关未来很多年的生活和居住体验,业主选择不将就。即使预算不多,他坚信专业的设计公司一定可以在有限资金内做到最好的居住效果。无意中在网络上看到我们壹夲設計,非常喜欢我们的设计作品,通过我们案例中讲述的设计落地过程和业主之间的故事,能够感受到我们是真真正正的在用心做设计,于是便毫不犹豫的选择了我们。非常感谢业主的无条件相信与配合,才有了我们这套作品的落地。南京室内设计师
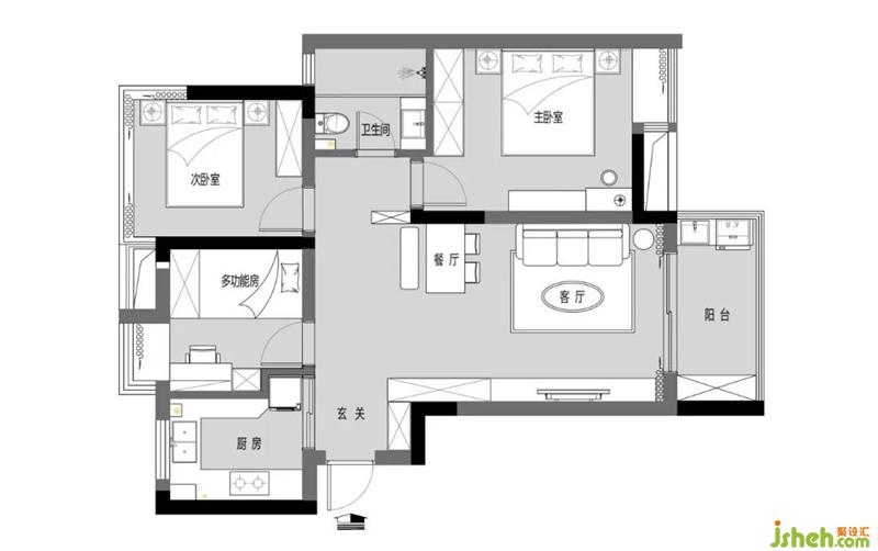
户型分析
▼原始结构图
1:进门放置鞋柜的位置较小
2:厨房冰箱位置比较尴尬只能放置在灶具那一面墙,导致灶具操作面变小。
3:北面小房间面积过小,无法当做卧室使用。
4:主卧面积稍小,放置1.8米双人床稍显拥挤。
5:整体储物空间不足
▼平面布置图
户型改造:考虑预算问题,遵循尽量降低工程量和施工难度的原则,户型不做过多改变,局部调整空间布局解决户型痛点即可。
1:鞋柜和电视背景墙连体设计,增加鞋柜面积和客厅储物功能。
2:厨房和小房间之间隔墙局部后移,挤出一个冰箱位,将厨柜由L型变为U字型,增加厨房利用率,厨房单开门顺势改为双扇玻璃移门,增大厨房和客餐厅的采光。
3:将北次卧的隔墙拆除,设备平台纳入房间内,成为一个标准房间。
4:将主卧墙体向卫生间移动30公分,在不影响卫生间使用功能的前提下增大主卧的面积,可以轻松摆放1.8米双人床。
5:见缝插针尽可能的多设置储物柜,本来并不大的户型通过各种柜类组合的设计,拥有了大量的储物空间。南京室内设计师
▼玄关
鞋柜和电视背景墙连为一体,柜体下部挑空设计,增加空间灵动性的同时玄关也不显拥挤
▼餐厅



餐厅设置开放格柜,虚虚实实,避免餐厅直面卫生间门的尴尬同时延展空间感。实木餐桌椅的温润木质和灰白墙面的搭配,清爽干净,质朴无华。南京室内设计师
▼客厅


