次卧
米色 原木 素白
低饱和度的色彩层叠之间
话语也室内设计师渐向缱绻
光亦转而暧昧
与家人簌簌低语
漫漫长夜 慢慢交心

-
05
TEA ROOM
茶室
-
或是在休闲椅上看外面风雨绵绵
亦是一种独处的泰然
好的空间 你不必言语 它自会叙述
当空间事物剥离室内设计师掉无谓的外在
归于宁静 情绪就会随之融合于空间当中

-
06
BATHROOM
浴室
-
瓷砖选用温暖的奶白色
与木式浴柜相互呼应
兼具实用的基础上
搭配整个奶油系室内设计师风格
宁静安逸的舒适感
存在于空间的每一个角落

-
07
ANALYSIS DIAGRAM
分析图
-
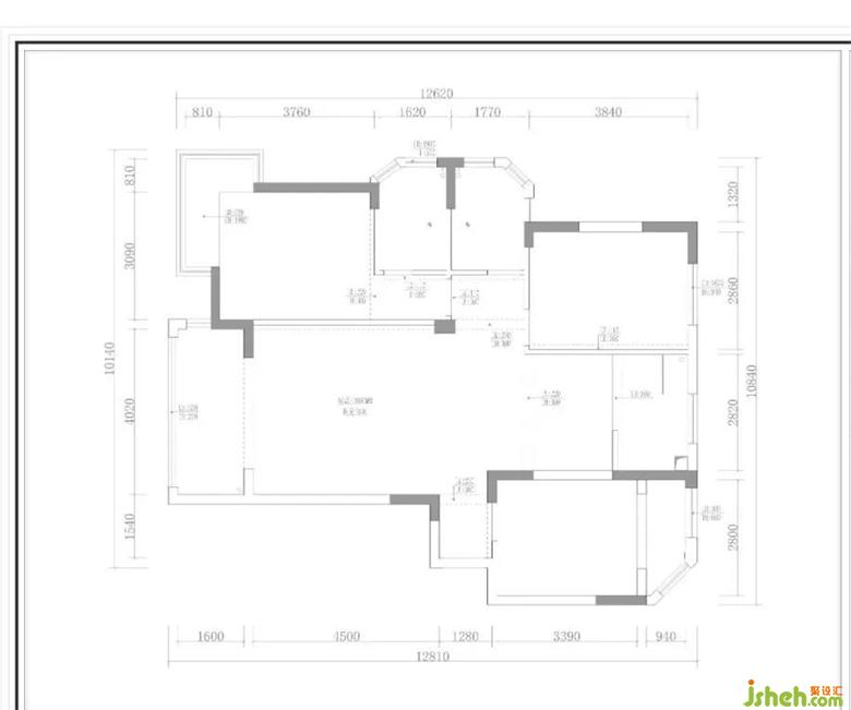
原始户型图
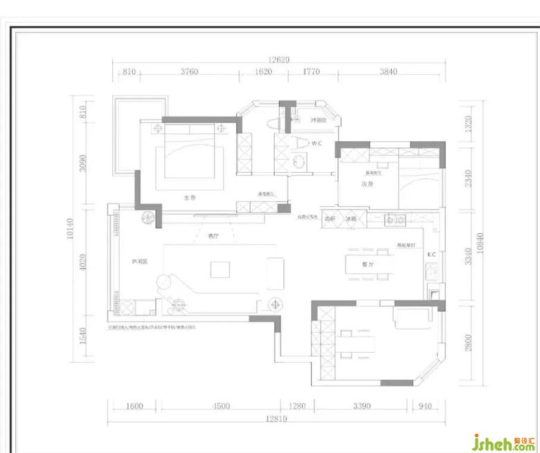
优化布局图
余工装饰高级室内设计师|叶若昕
更多室内设计师请关注: