设计施工单位 / 岩居全案机构
Designer and Build / YANJU DESIGN
项目地址 / 世茂·茂悦府
Location /Shimao Maoyuefu
户型面积 / 132㎡
Unit type and area / 132㎡
风格趋势 / 现代
Scenery trend / Modern
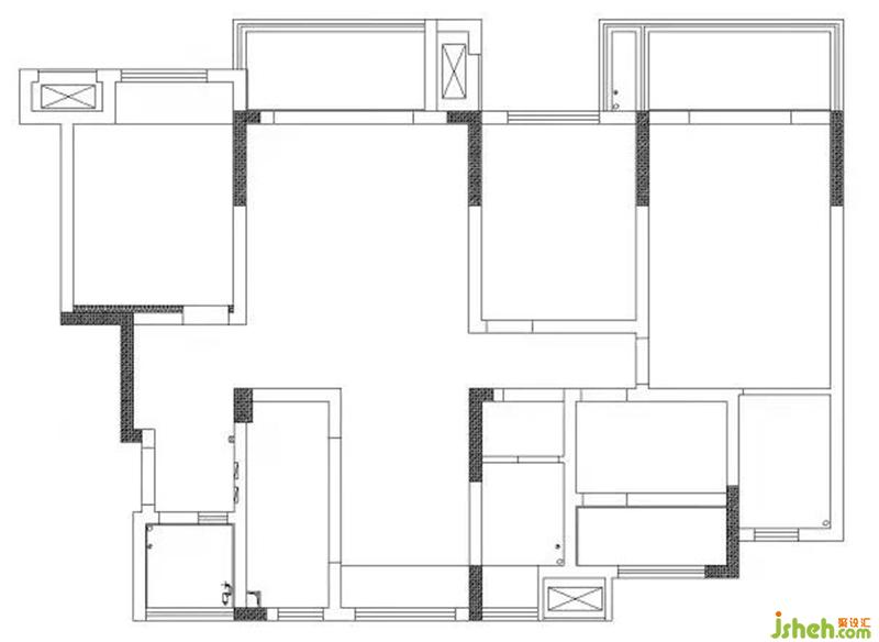
格局分布 / 四室两厅
Pattern distribution / Four rooms and two living rooms
因为常住人口不多,在整个项目落地的过程中,装修设计项目本身的结构对应业主的实际需求并不难。只是在饰面板和梁衔接位置的细节处理上及生活细节的处理上有些棘手,比如像灯光在落地前去做了实际的灯光选择,以及灯条不同色温、不同距离出来的效果比对。

HALLWAY
入户
深灰色鞋柜配以仿石材纹理的饰面,辅以柔和的铣型拉手和感应灯光,质感不失自然,硬朗不失柔和。
The dark gray shoe cabinet is equipped with a stone-like texture finish, supplemented by soft milling handles and induction lighting. The texture is natural and tough without losing softness.

打开入户隔墙,进门的视觉效果得到延伸,入户和开放式厨房自然融入。在采光得到改善的前提下,生活阳台采用隐形门处理。适当的烟熏木纹让空间质感得以提升。
装修设计承重结构柱在原有结构柱的基础上加宽,让它自然的成为入户和餐厅的一个隔断,加宽后的结构柱后面会装上穿衣镜满足业主的使用需求。
Opening the partition wall of the entrance, the visual effect of the entrance is extended, and the entrance and the open kitchen are naturally integrated. Under the premise of improved lighting, the living balcony is treated with invisible doors. Appropriate smoked wood grain enhances the texture of the space.
The load-bearing structural column is widened on the basis of the original structural column, making it a natural partition between the entrance and the restaurant, and a full-length mirror will be added behind the widened structural column to meet the needs of the owner.
岛台和餐桌融合定制,高低深浅的搭配让空间层次更立体,橘色餐椅的加入让灰色的空间灵动活泼起来。西厨岛台的木饰面上,用天然木皮来替代科技木皮,视觉效果更自然柔和。
The island table and the dining table are integrated and customized. The combination of high and low shades makes the space more three-dimensional, and the addition of orange dining chairs makes the gray space smart and lively. On the wood veneer of the western kitchen island, natural veneer is used instead of technical veneer, which makes the visual effect more natural and soft.
在色彩搭配上,整体空间以饱和度低的浅灰色为背景,主题色为深灰,以白色岩板做对比色来提亮空间,用烟熏木纹做为下沉色,让空间更显细腻和具有温度。
In terms of color matching, the overall space is based on low-saturation light gray, the theme color is dark gray, white slate is used as a contrast color to brighten the space, and the smoked wood grain is used as the sink color to make the space more visible Delicate and warm.

