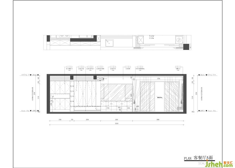
隐形门的设计及竖向的分割线来保持空间的完整性,天花吊平顶下来有运用灯带、磁吸轨道灯、满天星小射灯及主射灯,深圳家装设计增加了吊顶造型的层次感,软装方面没有过多的造型,以块面为主,让空间显得更加简洁精炼。



在整个空间中我也运用了一些不锈钢元素,起到点缀作用,深圳家装设计增加空间感的装饰效果,与木饰面的整体关系在不同材质之间把控得恰到好处,无丝毫凌乱突兀,反而将层次感展现得淋漓尽致。电视背景墙就是直接做了白色的艺术涂料,使整个面跳脱出来,层次分明。







不同的材质都在它自己的位置发挥自己仅有的气质,深圳家装设计用最简单的方式呈现出最不一般的本质。木饰面本身就是一种温润且大方的材质,其明确的的分割方法,干净利落的线条,让本单一的温馨高级氛围感变得简洁且有趣味性。
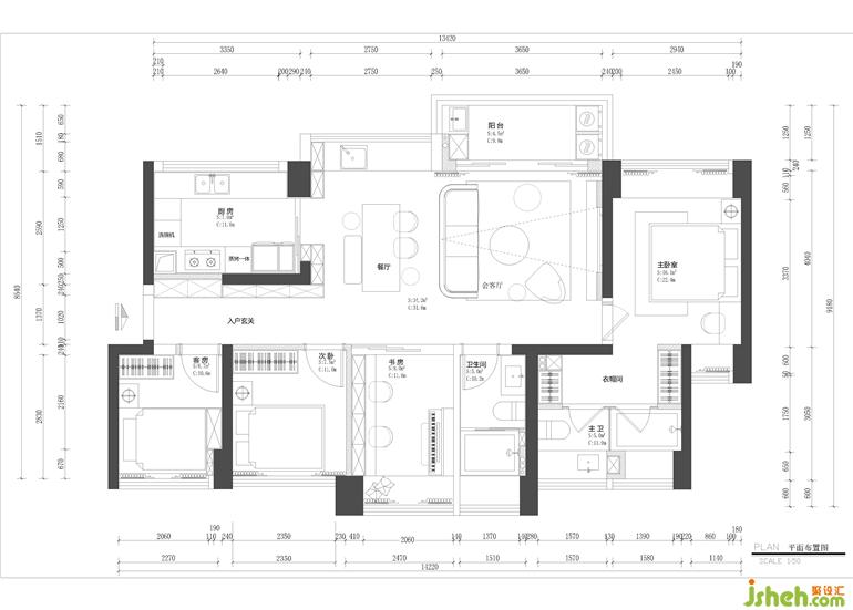
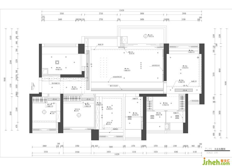
更多深圳家装设计请关注聚设汇装修平台: