欢迎光临聚设汇,装修找设计就上聚设汇!
   咨询电话:15602987227
登录    注册
聚设汇
首页 > 家装 > 云栖 | 都市精英生活空间

云栖 | 都市精英生活空间

房屋位置丨绿海湾

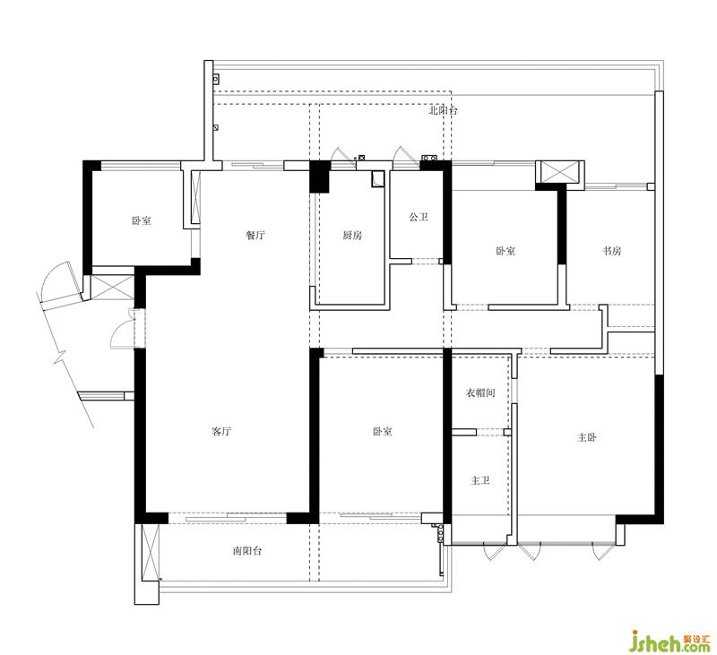
面积户型丨207㎡(3室)

常住成员丨一对夫妻+女儿

主要材质丨金属、木饰面、岩板

这是为本案业主设计的第二套房子,与业主自然形成了一种默契,六个月完成了这套作品。人才是空间的灵魂,好的空间内有一位美丽又睿智的女主人,将自己的生活理念一一落地。高级与舒适牵引着房屋的每一个角落,流畅的动线交织成优雅,空间之旅由此展开。

家,承载着多重功能,

诠释着居住与社交的平衡,

三口之家成员的私密空间与家庭公共空间的平衡。

空间的流动与分隔,流动则为一室,

分隔则分几个功能空间。

空间整体的呈现,

希望营造沉稳的步调,让时间彷彿放慢脚步,

在都市繁忙快速的环境中亦不忘享受当下的生活。

户型方正,格局规整,南北通透外加双阳台,在户型优势的基础上设计师更优化了空间,取其缺点加以改善完美空间。当把空间的规划放在第一位之后,拆掉多余隔断,就可以在视觉上扩大空间的总面积,并能为公共区域增加更多采光。

打通原先略显狭小的厨房墙体打造开放式中西厨,并增加宽阔的岛台,连接灶台与餐桌的中间地带,餐厨一体化。

改变儿童房开门位置,并“借”出了一整面属于中西厨的收纳空间,烤箱、蒸箱、嵌入式冰箱尽收纳于此,操作空间与收纳空间非常之宽裕。

拓宽略显狭窄的走廊空间,将次卧与次卫的墙面向里推。

衣帽间替代了原先的书房空间,衣物收纳空间都集中收归于此。

餐厅旁边的小卧室以书房代替,可看书,可会友,可小息。

空间是一种完美的融合与平衡,黑色木饰面板基底搭配优雅轻盈的金属格栅,宛如沉稳内敛的男主与知性轻盈的女主。在悄无声息之中,营造出丰富的层次感,为空间注入灵气。

地面上鱼肚白的纯净串联生活的各个空间,通过经典色调来呈现空间的比例感,开放式设计延展了空间格局,木饰面板和岩板恰当的区分了空间的使用性。

简洁干净的无主灯设计,使得整个空间透露出谦谦君子,沉着稳重的气质。

金属格栅阵列排序,搭配大理石石材电视柜台,在满足功能的情况下,少即是多,用“减法”的设计方式,去实现高级的状态。

绿植、摆件构成的小景,意蕴绵长,给空间一种向上的生命力和张力。

融为一体的开放式中西厨,打通略显逼仄的厨房墙体后,餐厨一体化,增加了宽阔的岛台。开阔的中西厨轻奢现代,岛台是整个中西厨的灵魂,是连接灶台与餐桌的中间地带,既可以是一个操作空间,也是一个温馨的交流区域。

在用餐区,潘多拉大理石台面与固定空间整体式岩板岛石头柜台相得益彰。餐厅作为承载家人情感的纽带,也是一个集沟通、陪伴、味觉享受为一体的重要空间。

精致的会客厅,也可用作书房。木质元素纯粹的营造理性的质感,透露出优雅与迷人的气质,空间排除一切冗余的线条,力求大气沉稳。释放出落地大玻璃,拥揽绝佳的视野与采光。

深圳涵瑜室内设计

设计收费:500 元/平             

擅长类型: 家装,豪宅,别墅

在线咨询

扫描二维码关注我们的微信

深圳市聚设汇文化传媒有限公司
主编热线:15602987227
总部:深圳市罗湖区梨园路128号宝能汽车大楼416单元
佛山、东莞、成都、重庆、福州、厦门、南昌、武汉、
杭州、苏州、温州、郑州、长春、沈阳、贵阳、柳州、
哈尔滨、九江等城市设立办事处
© 2017-2021 Jsheh.com 版权所有 粤ICP备17079093号
展开
回到顶部