设计团队 | 深圳涵瑜室内设计
房屋位置丨嘉园
面积户型丨 100 ㎡(3 室)
常住成员丨 2夫妻+1女儿
主要材质丨木、黑钢、玻璃
主题配色丨白、浅灰、黑、棕
前言
Y小姐是一个很温柔很耐心的人,与她接触给人的感觉很温和,很有亲和力。她个人的喜好与她的性格截然相反,惯性的以为会选择暖色的她更偏爱冷色系中个性黑灰系,崇尚简洁干净的感觉。所以本次案例中运用到了大量的黑色,在黑色空间中巧妙融入浅色系的家具和木色的装饰,和精准的结构比例处理区域,高级的简练感油然而生,如同她对工作的严谨认真一样,有条不紊。
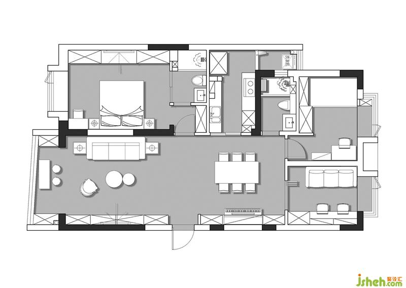
户型分析
原始图
原先的房子配上老气的装修设计风格,让100平做了3室的格局显得十分昏暗,还算方正的原始平面格局下,众多凸出的梁体把空间割的七零八碎。
餐厅空间局促狭小,四周过多的墙体显得沉闷
生活阳台面积较小,功能不能较好的发挥,比较鸡肋
卫生间太小,非常局促压抑
厨房采光不好,储物空间不足
平面图
为了实现在相聚时光里互动的最大可能性,被规划为整个家庭的公共社交区域,空间被最大化地打开,另外考量庞大的收纳需求,而重新调整了所有空间的收纳柜体,让动线与收纳更为明确。
客厅
为了让整体房间氛围和家具干净简洁,不能太拥挤和厚重的感觉。我们将整体空间色调饱和度降低,经过融合或隐藏的区域方式,淳朴的木元素为空间增加了自然气息,来展现出简洁干净的空间。



在背景木饰面我们选用浅棕结合黑色一个搭配法,并用浅灰色沙发点缀,整个空间显得通透明亮,所有色彩都带有灰度,展现一种对沉静自持、舒缓简单的向往,展现了纯粹而定静的本质。
靠近客餐厅公共空间的主卧室门,整体木饰面的处理,形成了融入墙中的隐形门,不仅拉伸了空间还起到保证主卧私密性的作用。
在黑灰空间中,加入木色调作为点缀,是永不过时的设计。为了平衡空间中大范围的灰调,加了点缀的嫩粉色,为冷冷的灰调添加了一丝温和。
餐厅
餐厅延续黑白棕的选色,强调功能性装修设计,把高级黑运用在家具配饰上,掩盖了黑色原本的冷酷,线条简约流畅,色彩恬静。黑与白,看似简单平静,却蕴含着无穷的魅力,赋予空间无限的想象。
△ 一眼望去的书房运用轻巧的玻璃折叠门,让餐厅的视觉空间更开阔,且具有互动性。
与餐厅的紧密连接处是另一番小天地,将钢琴设计在储物柜之间,加上镜子给予的扩容既视感,两者之间的搭配融洽,给空间增添了稳重,优雅。黑白灰色调的空间中有种能够让人迅速,平静下来的魔力,简而不减的搭配来制造屋子里的另一种安静的美。