设计团队 | 深圳涵瑜室内设计
房屋位置丨华晖云门
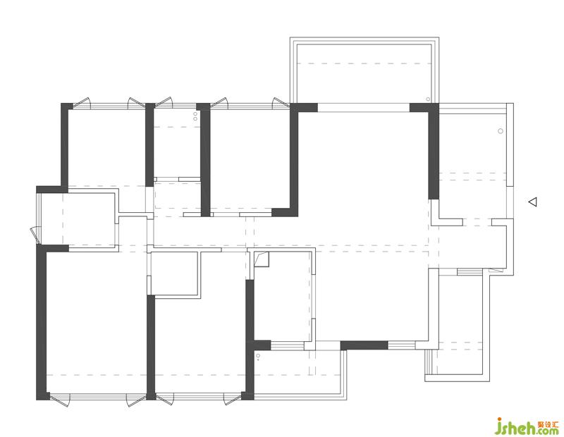
面积户型丨 163 ㎡(3 室)
常住成员丨 2夫妻+1女儿
主要材质丨石膏、金属、木
主题配色丨白、金
真正重要的东西眼睛是看不到的,只有用心去看才能看得清楚 —— < Le Petit Prince >
说在前面
王小姐与赵先生这对恩爱夫妻任职于知名企业,经过了八年奋斗与甜蜜的婚姻,事业有成之余还有一个很可爱的小女儿,是一组很幸福甜蜜的家庭。开始业主心目中本定位传统的美式风格,后面在接触的洽谈中,因欣赏过我们之前小法式
案例《新桥恋人》,已慢慢的倾向了低调的法式风,这种饱含着独立、优雅、与众不同的浪漫气质也许更适合他们。
原始户型基础相对较方正,布局并没有太大的改变,只是根据业主的个人生活习惯与使用需求优化了空间,稍微做了一部分改动。
为扩大女儿房的空间,将主卧的衣帽间拆除。
将原先的生活阳台进行了封窗,设计为可封闭的中厨。
厨房的墙面拆除,设计一个开放式的西厨岛台与放置、收纳物品的储物柜。
玄关
借着透亮的玻璃引入的阳光,一幅艺术感的挂画映入眼帘,黑色极简质感的端景桌时尚又精致,姿态柔和的绿植插花,衬托出对生活的仪式感。
客厅
空间的主色调以纯白为主,白色在视觉上有“冷”和“远”的效果。看到白色你会想到白雪、辽阔的天空,这些可望不可及的意向,为空间营造了一种纯净和完美。
传统法式风格略显厚重,所以特别弱化了古典浓厚的感觉去邂逅现代风的混搭,不需要多余的造型装饰,浪漫的法式线条与轻微雕花游走于整个空间,简洁典雅而充满品味,利落干净的空间没有一丝累赘。
深圳室内设计师为了提亮效果,让空间变得不过于简单,用了颜色对比的手法,利用其它颜色来打造高对比感,所以略微点缀了几处色调。
、
餐厅
几多纯粹几多温馨,每一笔设计都在延伸着浪漫。隐约若现的精致壁炉与金色文艺的复古镜,搭配黑色现代的实木餐桌与宝蓝金属轻奢椅,沉稳中透着轻盈,高贵中带有摩登。
