融合与对抗
Fusion and confrontation
“乱花渐欲迷人眼,浅草才能没马蹄。”白翁描绘的杭州自有一种恣肆和隽逸,张岱笔下的杭州也是有诗有酒好不逍遥,当代互联网经济的蓬勃发展又彰显她的新势能,餐厅设计城市的商业与文化自始至终也并非此消彼长。
“A riot of blooms begins to dazzle the eye; Amid short grass the horse hoofs can barely be seen.”
This is a verse extracted from the famous ancient poem“On Qiantang Lake in Spring” by Bai Juyi. Throughout history, Hangzhou has been depicted with captivating allure by numerous ancient poets. Bai Juyi’s portrayal of Hangzhou captures a unique blend of carefree indulgence and refined elegance, while Zhang Dai's depiction infuses the city with a poetic ambiance. In the contemporary era, Hangzhou’s burgeoning Internet economy exemplifies its new potential. Throughout, the city’s business and culture coexist in harmonious synergy.




日出日落,阳光透过玻璃与空间家具、菜品、材料、色彩和空间里的人,生发出不同的化学反应,形成事件与情感故事。谢培河在理性商业中融合性情和烟火,让空间到访者有回忆有感触。自有一份宁静与友好,自有亲情与友情,在空间传递,交流,共享。
Filteredthrough glass, sunlightengages with the furniture, dishes, materials, colors and people in the spacethroughout the day, creating chemical reactions, stories, and emotional narratives. Vivid life scenarios unfold in the commercial setting, nurturing memories and sentiments. The space blends a sense of tranquility and friendliness enriched with family love and friendship, serving as a medium for communication and sharing.
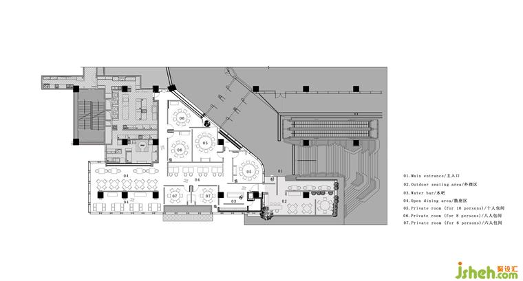
更多餐厅设计请关注聚设汇装修平台: