欢迎光临聚设汇,装修找设计就上聚设汇!
   咨询电话:15602987227
登录    注册
聚设汇
首页 > 家装 > Liangzhu Residence 良渚住宅旧房改造

Liangzhu Residence 良渚住宅旧房改造

旧房改造在材质的统一后,立面的功能变换并没有打乱某种秩序。

After the unification of the material, the functional transformation of the facade does not disturb a certain order.

▼产品 | Product

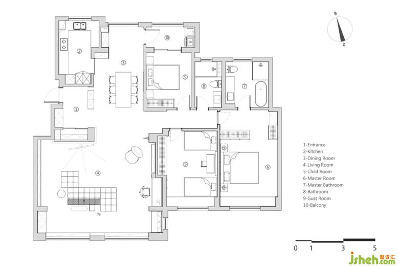
▼平面图 | Plan

更多旧房改造请关注:

杭州邸内建筑设计有限公司

设计收费:面议 元/平             

擅长类型: 家居

在线咨询

扫描二维码关注我们的微信

深圳市聚设汇文化传媒有限公司
主编热线:15602987227
总部:深圳市罗湖区梨园路128号宝能汽车大楼416单元
佛山、东莞、成都、重庆、福州、厦门、南昌、武汉、
杭州、苏州、温州、郑州、长春、沈阳、贵阳、柳州、
哈尔滨、九江等城市设立办事处
© 2017-2021 Jsheh.com 版权所有 粤ICP备17079093号
展开
回到顶部