设计师:辰沙设计
摄影:蓝灰
施工:老王
配画:铁拳
房子面积:90㎡
设计风格:北欧木基风
灵魂总是渴望自由。远方有时候在近处,有时在他乡。旅行的意义,是在出走的过程中,探寻到心灵的栖所,距离会让我们获得喘息的时刻,让我们有机会在时光的缝隙里遇见自己。那不旅行的时候呢?一个放松舒适的家便是灵魂安放的地方。
张先生是一个追求完美的处女座,喜爱旅行和摄影。由于本案是精装房,在与张先生多次沟通后,我们把重心放在软装上,打造一个冷色和木色结合的简约、舒适、放松的北欧风格之家,而在空间格局上只做轻微改动。感谢缘分让我们相遇。
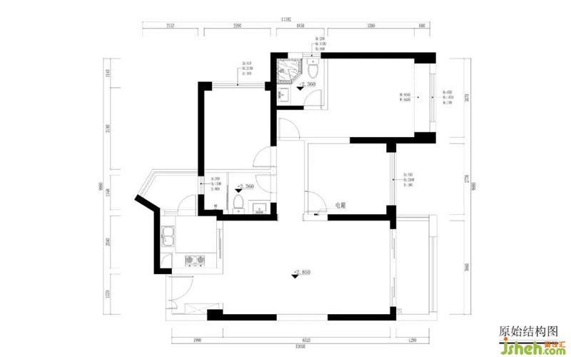
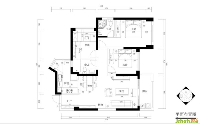
户型图

客厅 Living room
客厅可以说是一个家的灵魂所在,它是一家人待在一起最长时间的地方,也是客人来访时对于家的最初印象。室内设计师
打开家门,引入眼帘的便是木质的储物柜、电视柜,加上茂盛清新的绿植,整个客厅散发出自然的气息。冷灰色布艺沙发搭配黑框原木小茶几,提升了空间的舒适度。一人、一狗、一猫依偎在沙发上,享受静谧温馨的时光。


