设计师:辰沙设计
摄影:蓝灰
施工:正成装饰
房子面积:68㎡
设计风格:北欧混搭
当你在夜晚抬头看着星空,因为我住在其中一颗星球上,因为我在那颗星球上对着你笑,对你而言,就像整个星空都为你而笑一样,你拥有了为你而笑的整片星空。-----《小王子》
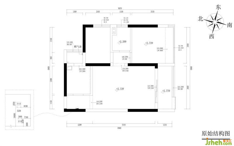
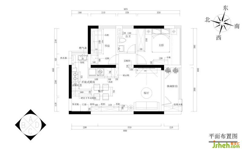
户型设计
业主喜欢空间开阔,把原来狭小的厨房空间改成了开放式,同时做了一个大储物柜放冰箱和洗衣机。客厅选用了蓝色和黄色的撞色来提亮空间,在单椅的选择上,选择了一个格子的作为跳色。主卧选用了一个水泥质感的衣柜,偏工业风,更符合业主的喜好。

厨房
设计师将原户型的玄关和厨房打通,增加厨房的使用面积,使整个空间更加开阔。室内设计师
六边形地砖和木纹地砖相拼接在无形中划分厨房与客厅的区域,层次递进。室内设计师
粉色与绿色结合的厨房,让你在做饭的时候随时感受到草的清香与花的甜腻,既满足心中向往的那份浪漫的少女情怀,又能使整个空间变得浪漫舒缓、灵动自然。室内设计师

厨房增设了厨房储物柜,既能隐藏冰箱的厚度,又能存放洗衣机,大大增加了收纳空间,使整体显得干净利落。
玄关的粉色麋鹿与厨房粉色瓷砖相呼应,仿佛一头麋鹿奔跑在浪漫的森林中,营造一种自然、欢快、轻松的氛围。