项目基本信息
项目名称:恰然家装设计
项目设计:深圳漾空间设计有限公司
软装实施:深圳漾空间设计有限公司
项目地点:深圳市南山区
项目面积:150平
装修风格:现代轻奢
设计说明
“厨房有烟火,饭桌有美食
身旁有好友,客厅有欢笑
卧室有拥抱,这就是幸福”
——《向往的生活》
日子缓缓,生活散散,选择安家在深圳南山区的一个经典住宅区,是他们在无边的忙碌奔波中、快节奏的深圳里,对家的终极幻想。
本案业主是一对年轻有思想的夫妇,家装设计在他们规划的生活蓝图中,有质感的家是对幸福爱情的加持,也是对未来的向往。
而经典之作,模板化的户型,以及千篇一律的布局方式,只有在室内设计下才能让向往的生活变得触手可及。
业主需求
part.1
❶本案业主是一对年轻的夫妇,他们有一只可爱的宠物,希望能在家里设计一个可以让宠物生活的区域。
➋业主对设计风格的期望是:简约但不单调,现代但不千篇一律。能够突出低调奢华、个性实力的标签,并且在未来生活中能经得住时间的考验,持久养眼耐看。
➌需要一个衣帽间,满足女主人的日常装扮。
设计思路
part.2
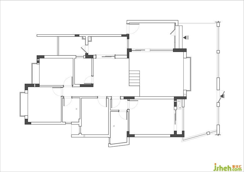
原始户型解析:
❶原始户型为错层,家居设计功能区跨平面的形式为室内带来了更多可能性。
➋进门玄关区域较大,但与客厅有一墙之隔,整体视野和采光都受到了局限。
➌客厅靠近楼梯位,活动区域较小,作为主要活动空间较为局促。
➍上楼梯便是餐厅区域,居中位置使得采光不足,且层高有限,身处其间有一定压迫感。
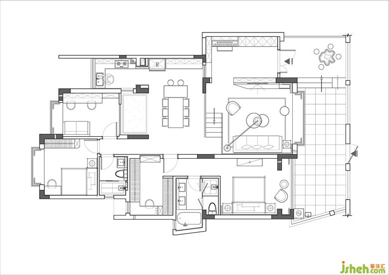
空间改造解析:
❶四房格局改成三房,将主卧与相邻次卧打通,加设衣帽间。同时将原生活阳台纳入卧室空间,提升采光通风和空间感。
➋将玄关和客厅打通,电视墙设计为半高墙体,使两个空间的视野都更加通透。
➌利用生活阳台空间做中厨,原中厨区改为开放式西厨,加设岛台,结合餐桌纳入餐厨一体空间,使用更方便舒适。
➍拆除原储藏间做狗狗活动区,设置在书房和餐厅之间,玻璃隔断的运用也提升了室内采光。
实景照片
part.3
01入户空间
INDOOR GARDEN

水波纹板做内凹设计,进门第一眼就被惊艳到了!水波纹材质延伸了空间感,映射着每一个归家人的美好心情。家装设计另一侧是通顶大立柜,功能齐全,兼具入户鞋柜+收纳空间+饰品展示,实用性和颜值双双在线。

钢琴的一角,是业主的气质涵养,音符围绕的生活,是高山流水也是婉转悠扬。侧边木格栅的细节设计,与客厅的沙发墙相呼应,有特色却不孤立,恰到好处。家装设计宽敞的过道,也有足够的空间让狗狗尽情玩耍,且收纳空间充足,宠物用品也不用愁置放处。
02潘多拉的浪漫
LIVING ROOM
