项目名称:蜕变
项目设计:深圳漾空间设计有限公司
软装实施:深圳漾空间设计有限公司
项目地点:深圳第5大道高发西岸花园
项目面积:120平
装修风格:现代简约
本案业主通过朋友推荐结缘漾家装设计,
更是把房屋的设计+装修全案交托给我们。
我们对室内空间做了重新规划与调整,
绝对称得上是大刀阔斧地革新!
四个阳台均做外拓,将阳台空间最大化利用!
加多一个卫生间,满足一大家人日常使用需求!
part.1业主需求
❶延续国外居住习惯,充足收纳、敞亮空间、全房木地板都是标配。
➋一家三口常住,父母偶尔小住,即将迎接小BABY的到来,故儿童房+两个卫生间成为刚需。
➌家装设计独立衣帽间,无疑是给女主人“最大的体面”,让日复一日打下的战利品拥有容身之所。
➍因男主工作需要,常与跨国公司连线,为不打扰家属,需在次卧设独立书桌进行办公。
➎家人和孩子兴趣爱好都要各得其所,比如高尔夫球杆的存放,比如各式家用厨电的收纳,比如黑板墙等等。
part.2 设计思路
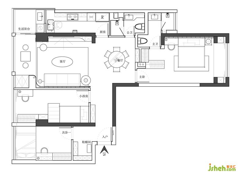
原始户型解析:
❶客厅位于两个卧室中间,与餐厅形成对角,显得空间较局促。
➋三室两厅一厨一卫基础上,需再加一个卫生间。
➌家装设计客厅、两间卧室、厨房各连接相应阳台,而这四个同在一侧的阳台却并未连通,导致阳台过大,房间并不大。
➍餐厅位于整个房子的中心,连接各个区域。
➎房梁较多且位置低,需巧妙化解梁的压迫与突兀。
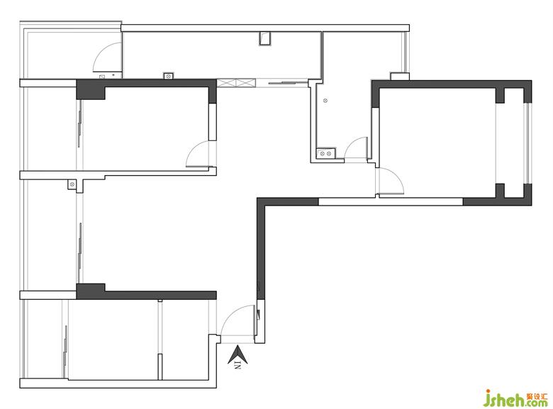
空间改造解析:
❶打通主卧与客餐厅连接的两面墙,对调原卧室和客厅,实现客餐厅一体。同时在满足儿童房重构空间尺寸的基础上,尽可能扩大客厅空间。
➋家装设计打通其中三个阳台,重新规划区域;拆除另一开放阳台原推拉门,封装入户;四个阳台均做外拓,阳台空间最大化利用。
➌将原狭长厨房向阳台外拓一部分,内侧挤出部分区域改成公卫,满足了两个卫生间的功能性需求。
➍将原卫生间门口公区收进主卧,重塑原主卧门和卫生间门,构造出一间带独立衣帽间、卫生间的小套房。
平面图一出,立马俘获业主芳心。不得不说,这个空间改造重塑堪称完美!接下来的装修施工,业主自然就放心大胆交给漾设计来跟进落地啦!
part.3 实景图片
01 重塑客厅
重新规划后的客厅占领了全房采光最好的地带!为更好地营造宽敞客厅,家装设计获取明亮光线,果断舍弃原大阳台,仅留出小块区域作为生活阳台,其余将整个客厅向阳台外拓,微微加高形成地台,拉伸客餐厅空间,也给餐厅增强光源。如果你的阳台还只局限于晒衣服,那就太浪费了!
漫坐茶台,相望窗外宝安体育馆,景色尽收眼底;低头品茶、靠窗赏景,竟不觉成了业主新的依赖,享受“多出来”的喜悦。这样的改造不香吗?
大面积米色墙面延伸空间感,局部造型以哑光烤漆板映衬层次质感,外加业主青睐的爱马仕橙跳色点缀,家装设计橙色系沙发、抱枕、花瓶处处点题呼应,高级的温暖氛围足够你在朋友圈独领风骚!

客厅所在区域天花梁位较多,加之阳台外拓,横梁外露,要想巧妙化解梁位的突兀感,就不能简单把它当成梁来处理!我们把梁融入到整个家里的设计元素中,将弧形元素贯穿整个空间,加之不同层次和形状的叠化设计,家装设计既能弱化梁位、又是美化装饰,不显山不露水便一举双得!
为避免弧形造型的单一生硬,在横梁、立墙、背景中也多处使用相同圆弧造型,修饰了梁,也形成了家中特有的元素——圆润的细腻美感!