项目名称:深圳家装设计:至臻
项目设计:深圳漾空间设计有限公司
软装实施:深圳漾空间设计有限公司
项目地点:深圳恒裕滨城
项目面积:245平
装修风格:现代轻奢
远超上海汤臣一品豪宅级别的恒裕滨城
低调霸享深圳南山“楼王地带”
雄琚湾区,俯视深圳湾、遥望香港
很多人好奇,住在这种地方都会是怎样的人物?
土豪?资本家?金融大佬?
四面贴金,繁华水晶吊坠灯,
雕花装饰,古典花纹地砖。
处处尽显奢华,才符合他们的气质吧?
part. 1 业主需求
然鹅,现实与想象总是天差地别。虽为顶级豪宅,但其室内精装修设计风格却比较传统,昏黄古典花纹地砖为早年流行的大欧式风,庄严而又厚重,略显土豪感,招致不少吐槽。精装修更多的展现了所谓“豪宅”的概念,却忽略了它作为一个“家”的意义。
本案业主找到漾设计,正是想突出后者意义,深圳家装设计打造集实用、舒适、高级、美观于一体的现代轻奢理想家。但原有精装修实在拆了可惜,留着眼疼,于是,难题给到设计师啦~
part. 2 设计思路
好在,漾设计的精装房改造经验丰富,在了解业主的风格倾向和设计需求后,改造方案便有了:
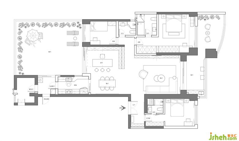
空间改造解析:
❶把原本昏黄的色调升级为金色轻奢滤镜,让室内空间进入“新时代”。
➋替换陈旧俗套的欧式花纹墙纸,分别运用颜色和纹理丰富的艺术漆改善空间质感,塑造清爽的现代格调。
➌深圳家装设计拆除大理石电视背景墙和部分线条装饰,以满墙收纳柜取而代之,既增加收纳空间,又能优化格局。
➍对现有空间进行重塑,利用赠送区域构建全新开放平台,私享超大阳台。
part.3 实景图片
01 低调奢华

整个客餐厅以米金色为主基调,墙面替换成浅灰色艺术漆,天花镶嵌金色边框与地面米棕色相呼应,深圳家装设计收纳柜用大面积米咖色烤漆搭配金色面板修饰,整体空间随即焕发现代感。
如果说不想原生泛黄地砖那么博眼球,安排上一张大地毯绝对是一剂良方,分分钟改变视觉体验。深圳家装设计另外,软装部分使用了米色布艺沙发、米灰丝绒地毯“遮丑”,盖住了原先土土的雕花瓷砖,是不是将客厅整个轻奢氛围瞬间带动起来啦?

别看空间色系稍显单调,其实深圳家装设计师在沙发抱枕上花了小心思,特意挑了3种颜色迎合整体风格,让业主可以根据季节或心情变化来调整软装。