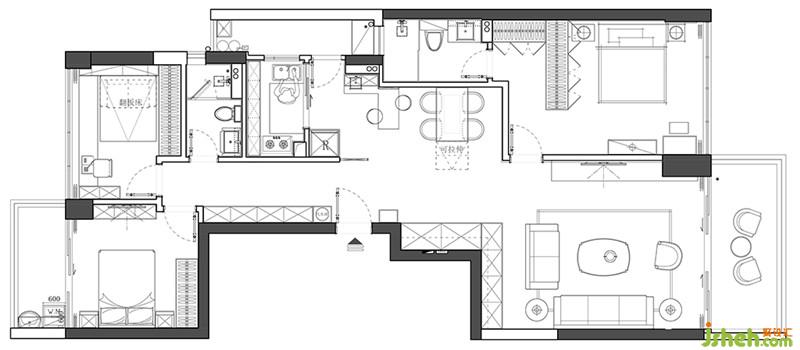
原始结构的主人房收纳空间非常少,特意将原来的单面柜改造成了L型的衣帽间,扩大收纳空间,使用起来也更加惬意。深圳装修公司

简约而不简单,不受过多繁杂之物的叨扰,让高负荷的身心得到释放,无论是在何时回到家中,目之所及皆是美好,所有的压力和烦恼都将消散。

生活中的跌宕起伏常有,而不以物喜、不以己悲的心态却很难得。不强求但也不轻易妥协,将日子过成自己喜欢的模样,或精致典雅、或简单舒适,同时散发着迷人光芒。透过卧室仿佛能看出主人的生活状态——独立、纯粹、真实。


多功能房延续了整体的简约风格,选用白色+木色的绝佳组合也让整个空间更显精致。在房间内部有一个隐藏式的翻版床,关合时与其他柜体融为一体,视觉上的整体感很强;需要时可将翻板床打开,成为一个标准的卧室,十分灵活。
灰白厨房看似简单,但搭配比例大有讲究。以白为主色,灰色墙砖便成了视觉焦点;以灰为主题,白色橱柜便成了亮点,一眼望去:干净、清爽、简约。颜值高又方便实用的厨房才配得上好的厨艺


美感来源于对生活的热爱,精心布置后,就连卫浴间都熠熠发光。特意选用的推拉式镜柜不仅满足了收纳和照镜子的需求,还增加了辅助光源提高亮度,让照镜子更加清晰,也增添了空间的氛围。深圳装修公司
漾设计从深圳年轻人的生活方式入手,怀着对生活的深入思考,从业主需求出发,以沉淀和艺术的方式将室内设计融入真实的生活场景之中,用简约、时尚的设计语汇,探索工作和生活的平衡。整屋被时尚和舒缓的气息充盈,无论处于哪个角度,都有与众不同的价值。

