欢迎光临聚设汇,装修找设计就上聚设汇!
   咨询电话:15602987227
登录    注册
聚设汇
首页 > 商业 > 商业餐饮的戏剧化与仪式感——祥云小镇唐廊烤鸭店

商业餐饮的戏剧化与仪式感——祥云小镇唐廊烤鸭店

似乎只有古拙质朴的原木色才能与现代空间的形成强烈的对比与冲击,从而形成强烈的戏剧化效果。红酒架有序排列,俨然整齐,而后空间形成错落感,平面、立体之间交相辉映。除此之外,它也被用作隔断,把空间区分开来。Only the modest color of wood may contrast with modern space, dramatizing the visual effects. The orderly wine rack also contradicts with the space behind. In addition, it also serves as a barrier between spaces.

二楼最大的惊喜是一端尽头的小型宴会厅,可用作聚会的场所,墙面使用了肌理漆,将故宫红墙的掠影引入室内。The most surprising space on the second floor is the small banquet hall at one end, which may serve as conference room. Verniciai coating is used on the wall, which is similar to the red wall of Forbidden Palace.设计公司

退入公共区域,这一抹红墙也成为了调和二层整体空间色调的视觉重点。将传统包房设计为小型宴会厅的功能,也是将传统餐饮服务功能提升,其中配备了现代化的影音设备,满足了当下的个性化消费需求。The red wall also serves as the visual emphasis to mitigate color tones of the second floor. Transforming traditional room into small banquet hall also improves traditional dining service, along with modern video and sound equipment to meet modern consumers’ demand.

包间既保证了用户的私密性,又形成了独特的视觉感官,不同的格子之间,将不同年代展现,在这一隅,将鲜明的历史姿态与生活契合。墙体装饰使用了从旧建筑上拆除下来的花格门扇,旧为新用既保留了传统建筑的视觉印记,也与现代空间设计之间形成了鲜明的对比关系。The booth guarantees privacy of customers while presenting unique visual sensation. Historical elements are this combined with daily life. For deco on the wall, framed doors from ancient architectures are used. It preserves visual factors from traditional building, and provides great contrast to modern space design.

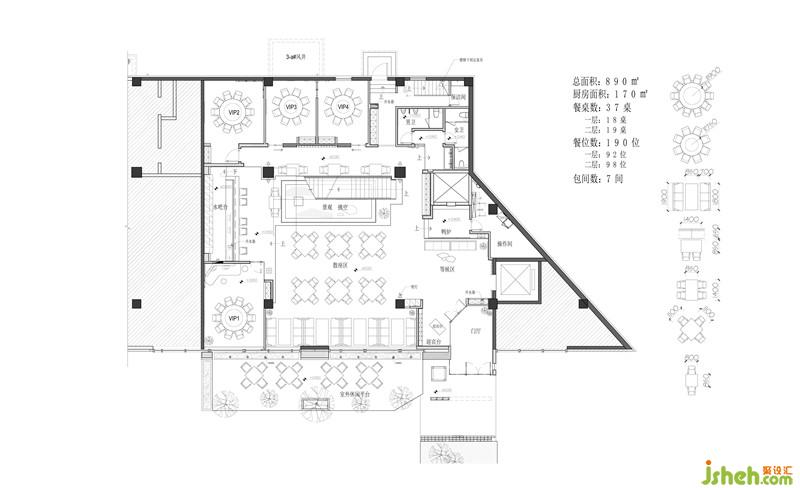
一层 first floor

二层 second floor

北京屋里门外(IN•X)设计公司创始人、创意总监

设计收费:1000 元/平             

擅长类型: 餐厅

在线咨询

扫描二维码关注我们的微信

深圳市聚设汇文化传媒有限公司
主编热线:15602987227
总部:深圳市罗湖区梨园路128号宝能汽车大楼416单元
佛山、东莞、成都、重庆、福州、厦门、南昌、武汉、
杭州、苏州、温州、郑州、长春、沈阳、贵阳、柳州、
哈尔滨、九江等城市设立办事处
© 2017-2021 Jsheh.com 版权所有 粤ICP备17079093号
展开
回到顶部