欢迎光临聚设汇,装修找设计就上聚设汇!
   咨询电话:15602987227
登录    注册
聚设汇
首页 > 家装 > 一段沉浸的二人时光

一段沉浸的二人时光

Per说,住了一年多了,聊的天、看的书、深圳装修设计烘干后香喷喷的衣服、做的一顿顿饭,这些时间、味道、情绪都凝成了美好又值得回味的瞬间,大概这就是生活真谛之所在吧。

Per, the owner, said that after living for more than a year, chatting, reading, washing and cooking, all these times, tastes and emotions have become beautiful and memorable moments. Maybe this is the essence of life.

/ END /

▼原始平面布局/Original Layout

两房两厅一厨一卫;

布局传统;

空间功能不符合使用需求;

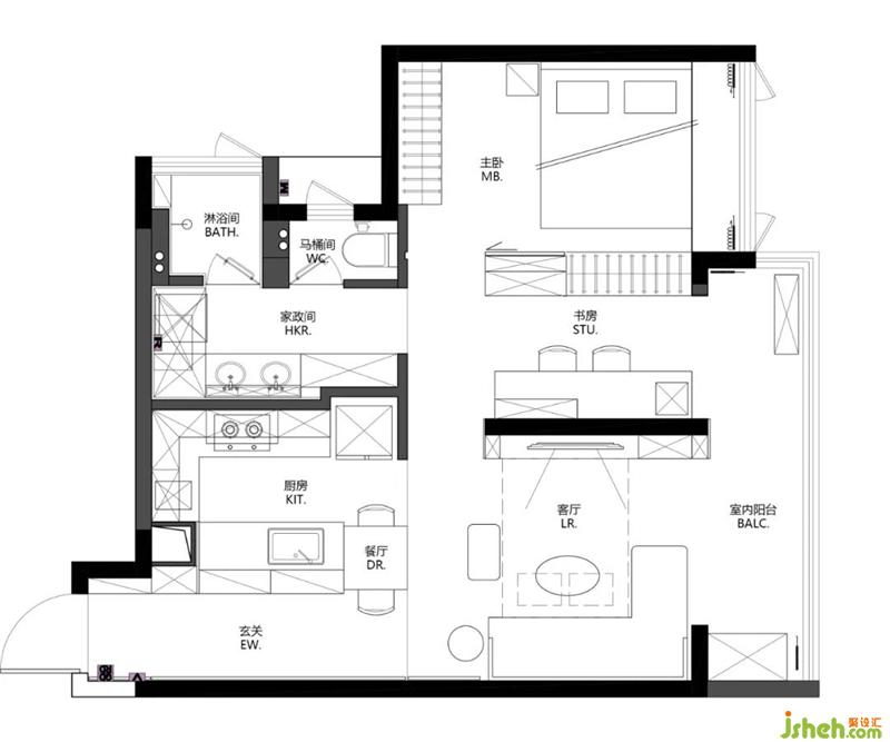
▼改造后平面图/Reformed Drawing

增加了家政间,功能周全;

全开放式空间,打造舒适的二人世界;

更多深圳装修设计请关注聚设汇装修平台:

深圳未耒设计

设计收费:面议 元/平             

擅长类型: 展厅,酒吧,住宅

在线咨询

扫描二维码关注我们的微信

深圳市聚设汇文化传媒有限公司
主编热线:15602987227
总部:深圳市罗湖区梨园路128号宝能汽车大楼416单元
佛山、东莞、成都、重庆、福州、厦门、南昌、武汉、
杭州、苏州、温州、郑州、长春、沈阳、贵阳、柳州、
哈尔滨、九江等城市设立办事处
© 2017-2021 Jsheh.com 版权所有 粤ICP备17079093号
展开
回到顶部