


△主卧
主卧则采用淡雅的色调来打造,简约的设计,床头素色清雅的青花瓷装饰画样板房设计。碎片的拼贴,寓意岁岁平安,釉面肥厚、滋润,釉色泛青,青韵之美 代表一种爱的琢美。


移步衣帽间其中,又幽静清雅,如同一眼幽泉,将岁月的浮躁与尘埃洗涤,散发着平和舒缓。
△厨房
艺术源于生活,设计师用艺术来表现生活,并为生活增添无限想象,是设计师与空间真切的对话。
势、韵、气、美,漫步东方诗境,以国风美学为灵感,提取中式风格中考究的文化内涵和审美——青瓷,与现代艺术之美结合,礼献约90㎡青瓷美学空间。自由与从容的气度,在方寸中精密把控,东方文化的优雅展现于空间。
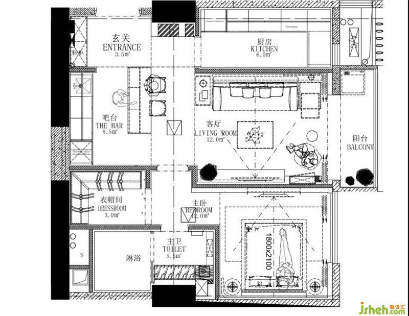
△平面图
更多样板房设计请关注聚设汇装修平台: